Neubauvillen in San Fulgencio mit privatem Pool und modernem Design
Exklusive Wohnanlage mit 7 freistehenden Villen in Südlage an der Costa Blanca
Entdecken Sie diese attraktive Wohnanlage mit 7 modernen, freistehenden Villen in San Fulgencio, einer charmanten Gemeinde in der Provinz Alicante. Die in zeitgenössischem Stil entworfenen und nach Süden ausgerichteten Häuser bieten viel Tageslicht und verbinden Komfort, Qualität und eine ideale Lage an der südlichen Costa Blanca.
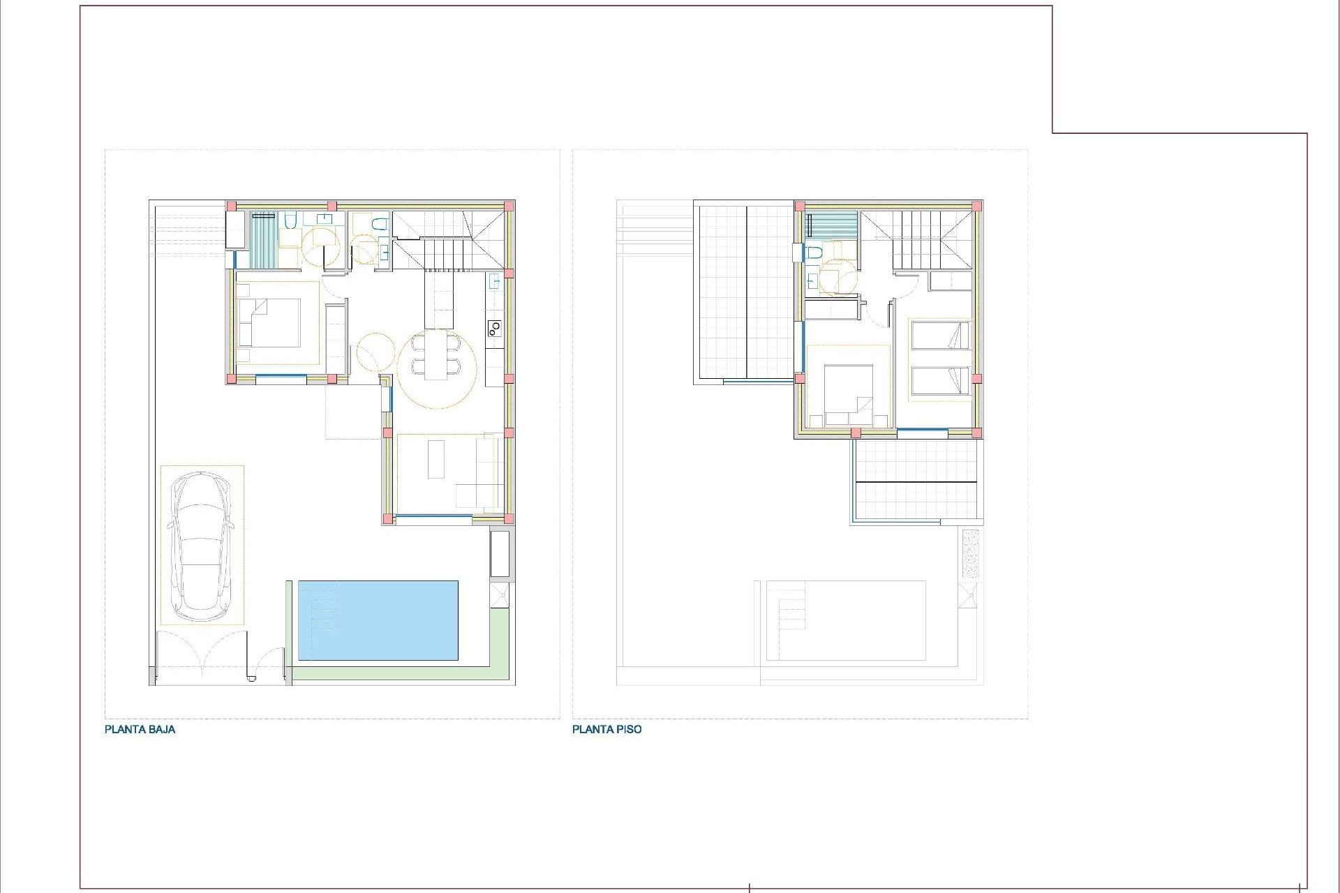
Funktionale Aufteilung und Außenbereiche
Die Villen sind auf zwei Etagen verteilt und bieten eine hervorragende Innenaufteilung:
3 geräumige Schlafzimmer, eines davon im Erdgeschoss
2 Badezimmer und 1 zusätzliches WC
Komplett eingerichtete offene Küche mit Elektrogeräten
Helles Wohnzimmer mit Zugang nach draußen
Im Außenbereich verfügt jedes Haus über:
Privater Pool (3 x 5 Meter)
Parkplatz auf dem Grundstück
Zwei offene Terrassen im Obergeschoss, ideal, um den ganzen Tag die Sonne zu genießen
Hochwertige Ausstattung und Energieeffizienz
Die Villen sind mit hochwertigen Materialien gebaut und auf Nachhaltigkeit ausgerichtet:
Elektrische Rollläden
Außenfenster mit Doppelverglasung
Luftwärmepumpen-System für Warmwasser
Vorinstallation für eine Klimaanlage mit Kanälen
Badezimmer mit Möbeln, Duschwänden und Spiegeln
Strategische Lage in San Fulgencio
San Fulgencio bietet die Ruhe einer Wohngegend mit allen Dienstleistungen in der Nähe, wie Restaurants, Supermärkte, Apotheken und mehr. Darüber hinaus sind dank der ausgezeichneten Lage die wichtigsten Sehenswürdigkeiten der Umgebung leicht zu erreichen:
Strand La Marina – 7 km
Guardamar del Segura – 10 km
Golfplatz La Marquesa (Ciudad Quesada) – 6 km
Zentrum von Torrevieja – 18 km
Internationaler Flughafen Alicante-Elche – 30 km
Ideal zum Wohnen, Investieren oder für den Urlaub
Diese Villen sind eine einmalige Gelegenheit sowohl für einen dauerhaften Wohnsitz als auch als Immobilieninvestition in einer der gefragtesten Gegenden der südlichen Costa Blanca. Ob Sie die mediterrane Sonne genießen möchten oder einen Zweitwohnsitz suchen, dieses Projekt bietet Qualität, Design und eine ausgezeichnete Lage.
Kontaktieren Sie uns noch heute für weitere Informationen oder um einen Besichtigungstermin zu vereinbaren und entdecken Sie Ihr neues Zuhause in San Fulgencio.