Moderne Villen in La Romana, Alicante
Exklusive Neubauwohnungen in einem charmanten spanischen Dorf
Diese modernen Neubauvillen in La Romana sind für diejenigen gedacht, die Ruhe, Komfort und den authentischen spanischen Lebensstil suchen. Die Häuser befinden sich auf 370 m² großen Grundstücken in einem Wohngebiet am Rande des Dorfes und sind nur einen kurzen Spaziergang vom Stadtzentrum entfernt, wo Sie traditionelle Restaurants, Geschäfte und alle täglichen Dienstleistungen genießen können. Umgeben von Weinbergen, Mandelbaumhainen und Berglandschaften bietet La Romana eine einzigartige ländliche Umgebung und ist dennoch nur 30 Minuten von der Küste entfernt.
Geräumiges Design mit modernem Komfort
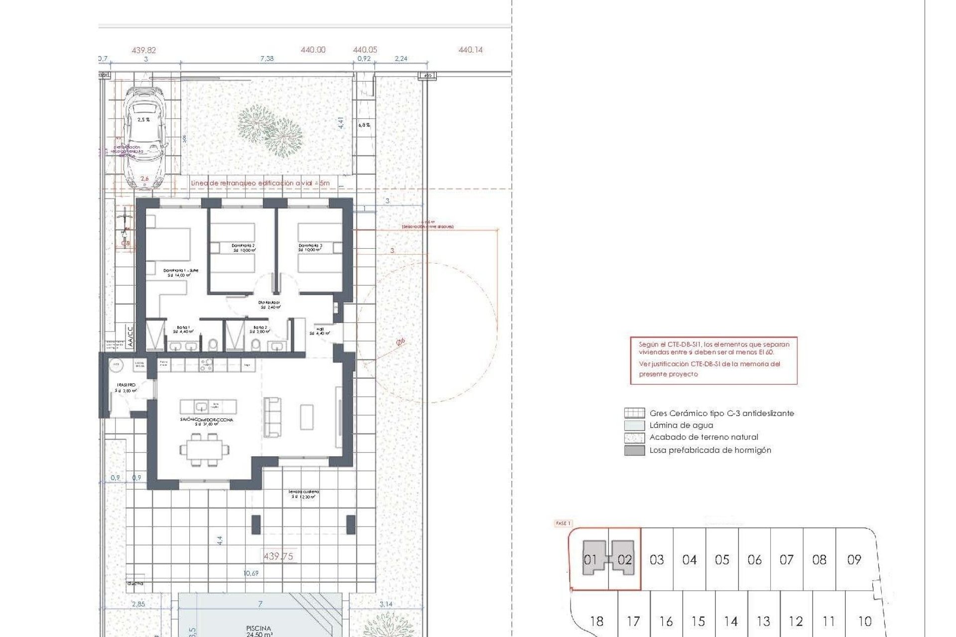
Jede Villa bietet 127 m² Wohnfläche, verteilt auf 3 Schlafzimmer und 2 Badezimmer, darunter eine Master-Suite mit eigenem Bad. Der offene Wohn- und Essbereich fügt sich nahtlos in die möblierte Küche ein und bietet direkten Zugang zur Terrasse und zum privaten Pool. Zu den weiteren Ausstattungsmerkmalen gehören ein Abstellraum/Waschküche und ein privater Parkplatz auf dem Grundstück. Für diejenigen, die zusätzlichen Platz im Freien wünschen, besteht die Möglichkeit, gegen Aufpreis ein Dachsolarium hinzuzufügen.
Premium-Ausstattung inklusive
Diese Villen sind mit hochwertigen Oberflächen ausgestattet und verfügen über folgende Ausstattung:
Privater Pool von 6 x 3,5 m
Klimaanlage mit Wärmepumpe (Installation und Gerät inklusive)
Moderne Küche mit weißen Schränken und Granitarbeitsplatten
LED-Beleuchtung im gesamten Haus und auf der Veranda
Doppelverglasung, weiße Innentüren und Einbauschränke
Die Fertigstellung ist 14 Monate nach der Reservierung geplant, sodass Sie ein brandneues, individuell gestaltetes Zuhause erhalten.
Ideale Lage in der Landschaft von Alicante
La Romana ist ein traditionelles spanisches Dorf im Landesinneren von Alicante, das für seine gastfreundliche Gemeinde und seine natürliche Umgebung bekannt ist. Seine Lage bietet die perfekte Balance zwischen Ruhe und Erreichbarkeit:
Aspe – 8 km
Elche – 18 km
Flughafen Alicante – 35 km
Strände der Costa Blanca – 30 km
Golfplätze (Font del Llop & Alenda) – 20 km
Alicante Stadt – 32 km
Ihr mediterraner Lebensstil erwartet Sie
Wenn Sie auf der Suche nach einer ruhigen Umgebung sind, umgeben von Bergen, Weinbergen und charmanten spanischen Städten, aber dennoch in der Nähe der Mittelmeerküste, sind diese Villen in La Romana die perfekte Wahl. Kontaktieren Sie uns noch heute für weitere Informationen und sichern Sie sich Ihr neues Zuhause in Alicante.