Новые таунхаусы на первой линии гольф-клуба La Serena в Лос-Алькасарес
Премиальное расположение рядом с гольф-полем и морем
Откройте для себя эксклюзивный жилой комплекс из 31 нового таунхауса, расположенный на первой линии гольф-клуба La Serena в Лос-Алькасарес, всего в 600 м от Мар-Менор. Расположенный в самом сердце Коста-Калида, этот привилегированный комплекс сочетает в себе гольф, пляж и средиземноморский образ жизни. Благодаря близости всех удобств и отличному транспортному сообщению, это идеальное место как для отдыха, так и для круглогодичного проживания.
Современные дома с частным бассейном и солярием на крыше
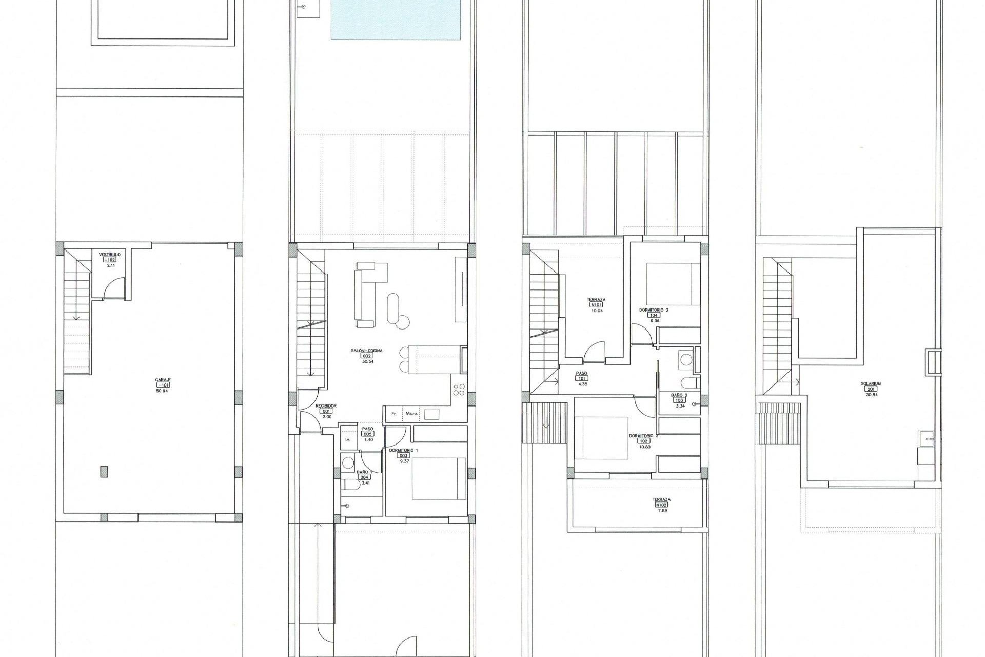
Каждый дом отличается стильным современным дизайном и светлыми интерьерами. Дома состоят из трех уровней и солярия на крыше, что обеспечивает максимальный комфорт и уединение:
Подвал с частным гаражом на 2 машины и выходом на патио
Первый этаж с открытой планировкой гостиной и кухни, выходящей в сад и к частному бассейну, 1 спальня и 1 ванная комната
Второй этаж с 2 спальнями, 1 ванной комнатой и 2 террасами
Солярий на крыше с летней кухней, идеально подходящий для отдыха и наслаждения панорамными видами
Восточная и западная ориентация обеспечивают отличное естественное освещение и возможность проводить время на свежем воздухе в течение всего дня.
Высококачественная отделка и комфорт
Эти дома построены по самым высоким стандартам и предлагают такие преимущества, как:
Частный бассейн
Гараж на 2 машины с моторизованной дверью
Аэротермальная система горячего водоснабжения
Полностью установленная система кондиционирования с воздуховодами
Меблированная и оборудованная кухня
Полностью оборудованные ванные комнаты с мебелью, зеркалами и душевыми перегородками
Безопасная входная дверь
Живите между морем и полем для гольфа
Расположенный среди пышных средиземноморских ландшафтов, этот эксклюзивный комплекс предлагает спокойную жизнь рядом с полем для гольфа Serena, известным 18-луночным полем, окруженным природой и тихими озерами. Теплые мелкие воды Мар Менор идеально подходят для купания и занятий водными видами спорта, такими как парусный спорт, паддл-серфинг и каякинг, в течение всего года.
Ключевые расстояния:
Пляж (Мар Менор): 600 м
Поле для гольфа La Serena: рядом с комплексом
Центр Лос-Алькасарес: 2 км
Картахена: 22 км
Город Мурсия: 40 км
Аэропорт Мурсии: 30 км
Аэропорт Аликанте: 90 км
Обеспечьте себе средиземноморский образ жизни
Независимо от того, ищете ли вы постоянное место жительства, дом для отдыха или выгодную инвестицию, эти дома предлагают роскошь, удобство и превосходный прибрежный образ жизни.
Свяжитесь с нами сегодня, чтобы запланировать просмотр и обеспечить себе новый дом в Лос-Алькасаресе.