Exclusivos Bungalows de Obra Nueva en Pilar de la Horadada – Estilo único y Ubicación Privilegiada
Un Estilo Único que Define tu Nuevo Hogar
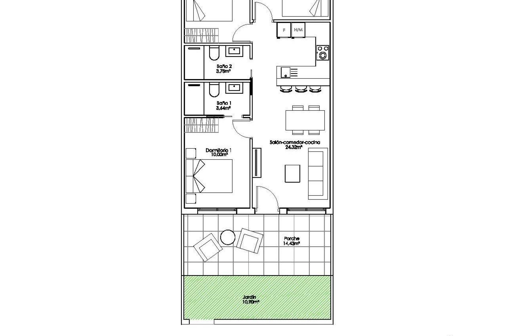
Esta nueva promoción de bungalows de 2 y 3 dormitorios en Pilar de la Horadada destaca por su diseño moderno y su estructura ondulada, que aporta una personalidad única a cada vivienda.
Podrás elegir entre:
Plantas bajas con jardín delantero y patio trasero.
Plantas altas con solárium privado.
El residencial cuenta con una piscina comunitaria y amplias zonas comunes diseñadas para el descanso y el disfrute de toda la familia.
Además, la urbanización ofrece gimnasio exterior, jacuzzi comunitario y zona de parking para bicicletas, además de una plaza de parking asignada por cada vivienda con opción de carga de vehículos eléctricos, pensados para ofrecerte el máximo confort y calidad de vida.
Interiores Luminosos y de Alta Calidad
Cada vivienda ha sido diseñada para ofrecer una experiencia de confort y funcionalidad. Los espacios abiertos maximizan la sensación de amplitud y luminosidad, mientras que los acabados en tonos neutros y madera crean un ambiente elegante y acogedor.
Dormitorios amplios y luminosos, con el principal ofreciendo acceso a una terraza privada.
Cocina de concepto abierto, integrada en el salón para mayor comodidad.
Baños modernos con materiales de primera calidad.
Pilar de la Horadada – Calidad de Vida en la Costa Blanca
Situado en la provincia de Alicante, Pilar de la Horadada es un municipio costero que combina tradición con un ambiente relajado. Es conocido por sus hermosas playas, como la Playa de las Higuericas, con arena dorada y aguas cristalinas del Mediterráneo.
Además de su costa, la ciudad cuenta con una vibrante calle principal llena de tiendas, supermercados, restaurantes y plazas pintorescas. Su excelente infraestructura incluye carriles bici, rutas de senderismo y una gran variedad de actividades deportivas.
Cercanía a los Principales Puntos de Interés
Este residencial ofrece un acceso cómodo a los destinos más importantes de la zona:
Playa de Torre de la Horadada – 3 km (5 min en coche).
Campo de golf Lo Romero – 5 km (10 min en coche).
Centro Comercial La Zenia Boulevard – 15 km (15 min en coche).
Aeropuerto de Corvera (Murcia) – 40 km (40 min en coche).
Aeropuerto de Alicante – 55 km (55 min en coche).
Asegure Hoy su Vivienda en la Costa Blanca
No pierda la oportunidad de adquirir una vivienda de obra nueva en una ubicación excepcional. Contáctenos hoy mismo para más información y para programar una visita.