Villas modernes neuves avec vue sur la mer à Finestrat, Alicante
Promotion exclusive dans un emplacement privilégié
Situé dans l'une des zones les plus prisées de la Costa Blanca, ce projet résidentiel exclusif propose 18 villas indépendantes au design moderne et fonctionnel. Situées à proximité de Finestrat (4 km) et de Benidorm (5 km), les villas bénéficient d'un environnement privilégié avec vue panoramique sur la mer et vue directe sur le prestigieux parcours de golf Puig Campana. L'aéroport international d'Alicante est à seulement 40 km, ce qui rend les déplacements pratiques et efficaces.
Design contemporain et agencement spacieux
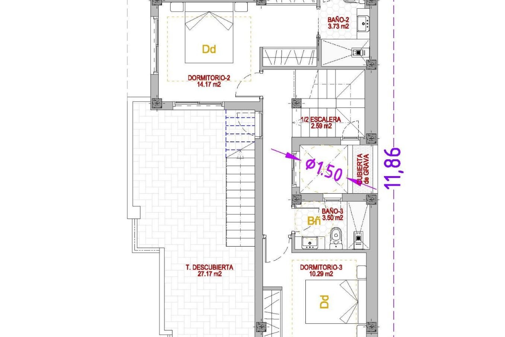
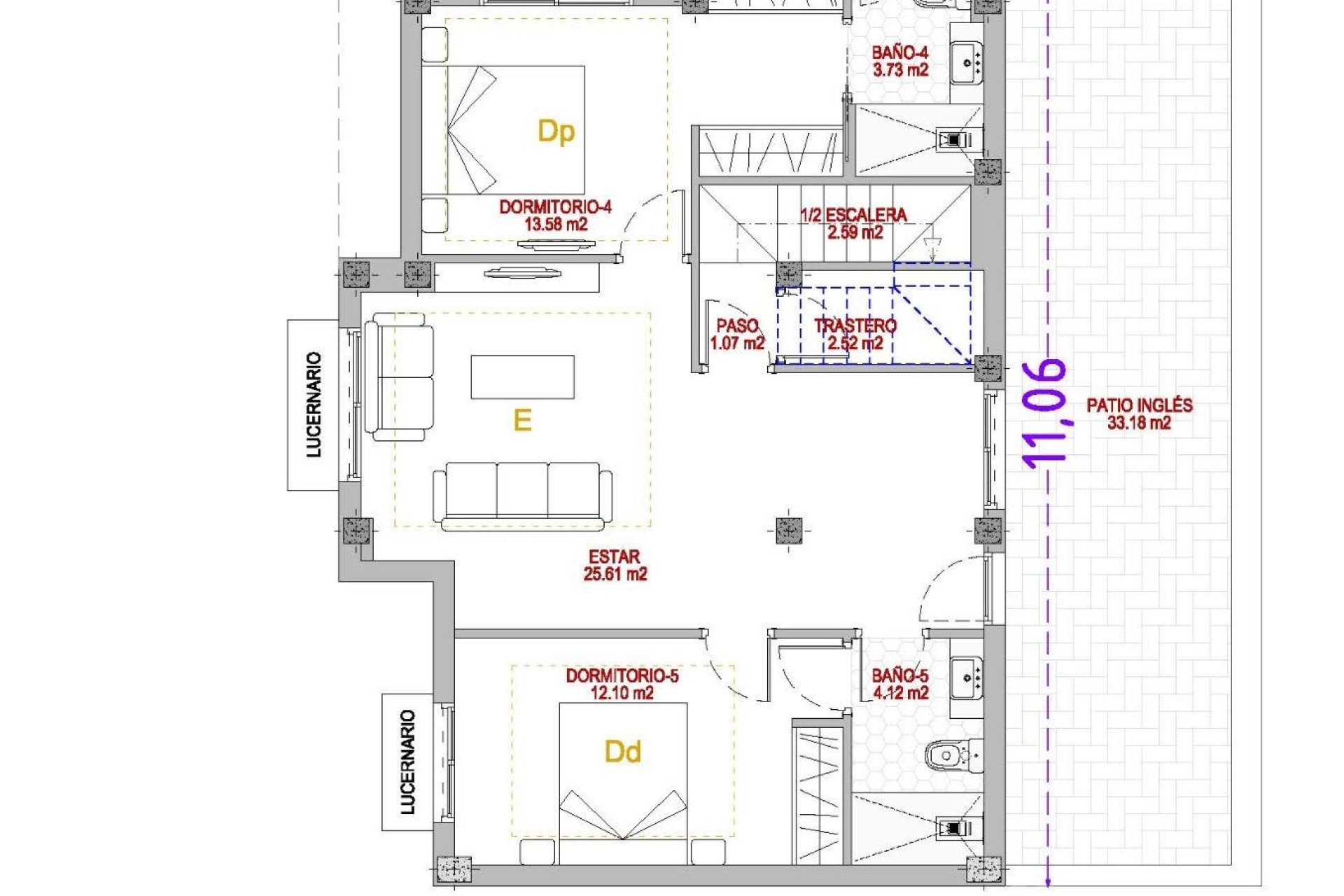
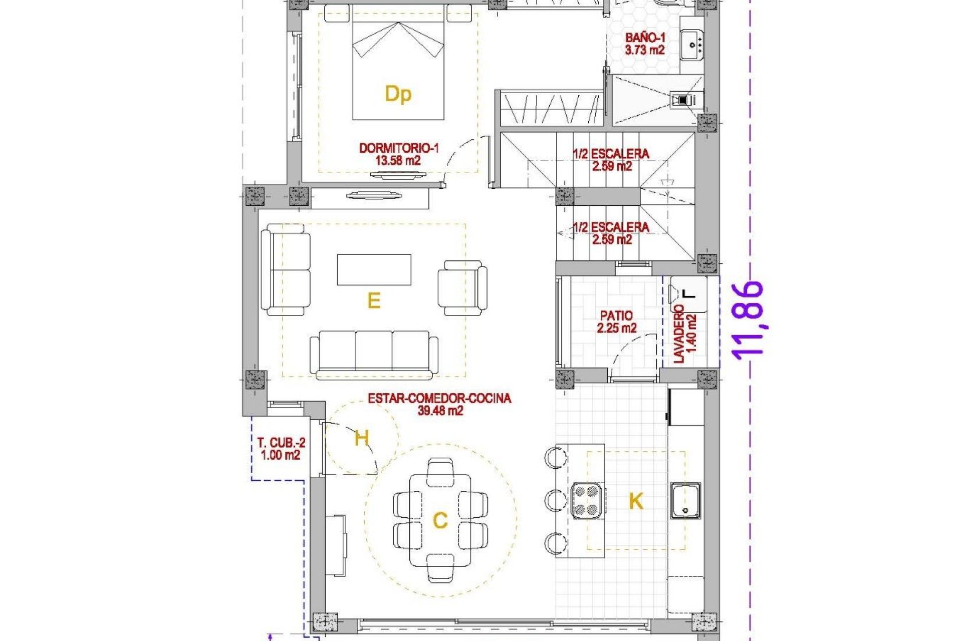
Chaque villa a été soigneusement conçue pour allier élégance, confort et fonctionnalité. Avec des terrains privés de 330 m² à 460 m², ces maisons sont réparties sur deux étages et offrent des espaces ouverts et lumineux. Certaines unités comprennent également un sous-sol de 66 m² avec patio, comprenant deux chambres supplémentaires, deux salles de bains et un salon, offrant une polyvalence supplémentaire pour les invités ou les loisirs.
Vie en plein air et équipements privés
Chaque propriété est livrée avec un jardin entièrement aménagé, une piscine privée, une clôture périphérique et des portails d'accès pour piétons et véhicules. Le solarium sur le toit offre un espace idéal pour se détendre, profiter du soleil et admirer une vue imprenable sur la Méditerranée. Les terrasses spacieuses et les espaces paysagers sont conçus pour la vie en plein air, afin de profiter au maximum du climat exceptionnel de la région.
Intérieurs aux finitions haut de gamme
Le rez-de-chaussée est ouvert sur un salon, une salle à manger et une cuisine moderne entièrement équipée avec plan de travail en quartz et appareils électroménagers intégrés. Les baies vitrées inondent la maison de lumière naturelle et créent une transition harmonieuse entre l'intérieur et l'extérieur. Une chambre au rez-de-chaussée offre une flexibilité supplémentaire, tandis que l'étage supérieur abrite deux autres chambres, dont la suite parentale avec dressing, salle de bains privative et terrasse de 30 m² avec vue sur la mer. Les finitions haut de gamme comprennent des menuiseries intérieures laquées en blanc, des armoires encastrées, des menuiseries extérieures à rupture de pont thermique, des volets motorisés dans les chambres et 3 salles de bains avec mobilier design, toilettes suspendues et parois en verre.
Mode de vie et environnement
Ces villas offrent un mode de vie privilégié à proximité des plages dorées, des centres commerciaux et des attractions familiales telles que le parc à thème Terra Mítica (5 km). Pour les amateurs de golf, le Puig Campana Golf (à 1 km) et le Villaitana Golf (à 6 km) avec ses deux parcours Nicklaus Design offrent une expérience de classe mondiale.
Votre nouvelle maison sur la Costa Blanca
Que ce soit comme maison de vacances ou comme résidence permanente, ces villas modernes de la Costa Blanca allient luxe, emplacement et confort. Contactez-nous dès aujourd'hui pour organiser une visite et faire le premier pas vers la maison de vos rêves en Espagne.