Villas neuves sur des terrains spacieux de plus de 500 m² à Lorca
Villas neuves de style méditerranéen dans un quartier résidentiel sécurisé et tranquille
Découvrez un développement exclusif de villas indépendantes sur des parcelles de plus de 500m², stratégiquement situé dans le sud-est de l'Espagne. Ces maisons offrent la combinaison parfaite entre la tranquillité de la campagne, la proximité de la côte et d'excellentes connexions routières avec les principales villes et les aéroports.
Niché dans un cadre privilégié sur la Costa Cálida, ce lotissement bénéficie d'un ensoleillement tout au long de l'année, ce qui en fait un lieu idéal pour profiter du style de vie méditerranéen.
Maisons spacieuses et lumineuses avec jardins privés
Conçues pour offrir un maximum de confort et de détente, ces villas sont dotées d'espaces de vie ouverts, avec de grandes fenêtres, qui relient harmonieusement les espaces intérieurs et extérieurs. Le généreux jardin privé offre un cadre parfait pour les loisirs en plein air, avec la possibilité d'ajouter une piscine et de personnaliser l'aménagement paysager.
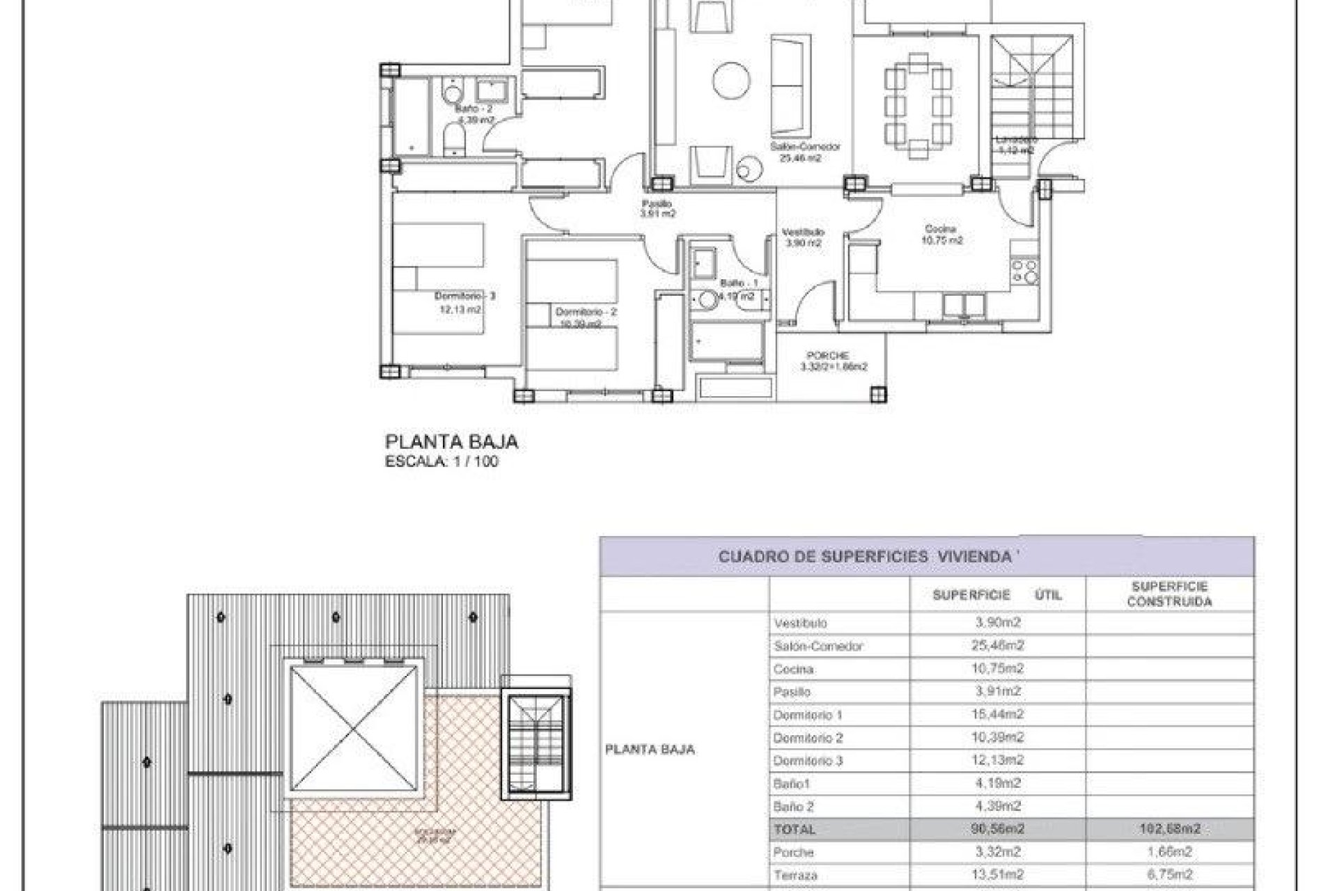
Choisissez parmi trois modèles de villas, disponibles sur un ou deux étages, avec 3 ou 4 chambres et 2 ou 3 salles de bains. Chaque maison comprend un solarium privé, ce qui permet aux résidents de profiter pleinement de la beauté des lieux.
Une communauté sécurisée et bien équipée
Cette urbanisation clôturée offre un service de sécurité 24 heures sur 24 avec accès contrôlé, garantissant la tranquillité d'esprit de tous les résidents. Conçue dans le respect de l'environnement, la communauté comprend :
Deux grands parcs paysagers pour la détente et les activités familiales.
Des aires de sport et de jeux dédiées pour promouvoir un mode de vie actif.
Des rues bordées d'arbres et une piste cyclable de 3,5 km longeant le périmètre de l'urbanisation.
Une zone commerciale à l'entrée, qui comprendra un restaurant, un supermarché, une station-service et d'autres services essentiels.
Des finitions de haute qualité pour un confort maximal
Chaque villa est construite avec des matériaux de première qualité et des installations modernes :
Pré-installation pour l'air conditionné
Pré-installation pour le gaz naturel
Porte d'entrée sécurisée
Fenêtres Climalit à double vitrage
Communauté entièrement clôturée et surveillée 24 heures sur 24
Situation privilégiée - proche de la côte et des commodités de la ville
Situées dans une zone nouvellement développée de la municipalité de Lorca, ces villas offrent un environnement naturel et paisible tout en conservant un accès facile aux principaux sites :
Centre ville de Lorca - 10 km
Plages d'Águilas - 20 km
Aéroport de Murcia-Corvera - 70 km
Aéroport d'Alicante - 130 km
Centres commerciaux et restaurants - 10 km
Trouvez votre maison idéale sur la Costa Cálida
Avec 50 maisons déjà achevées et un total de 320 prévues, c'est l'occasion d'acquérir une nouvelle villa de style méditerranéen dans une nouvelle communauté en plein essor. Qu'il s'agisse d'une résidence permanente, d'une maison de vacances ou d'un investissement, ces propriétés offrent un excellent rapport qualité-prix dans un emplacement de choix.
Contactez-nous dès aujourd'hui pour en savoir plus et organiser une visite !