Bungalows nouvellement construits à San Pedro del Pinatar - Situation privilégiée à 500 m de la plage
Maisons exclusives de style boutique près de la côte
Découvrez ces élégants bungalows neufs au cœur de San Pedro del Pinatar, à seulement 500 mètres des superbes plages de la Mar Menor. Ce lotissement de charme ne comprend que huit maisons caractéristiques, alliant design moderne, confort et mode de vie côtier paisible.
Modèles disponibles pour s'adapter à votre style de vie
Modèle rez-de-chaussée/jardin : Ce modèle comprend une terrasse à l'avant et un patio spacieux à l'arrière, parfaits pour vivre à l'extérieur.
Modèle Penthouse Loft : Comprend un solarium privé sur le toit et une terrasse avant, offrant des vues dégagées et une abondance de lumière.
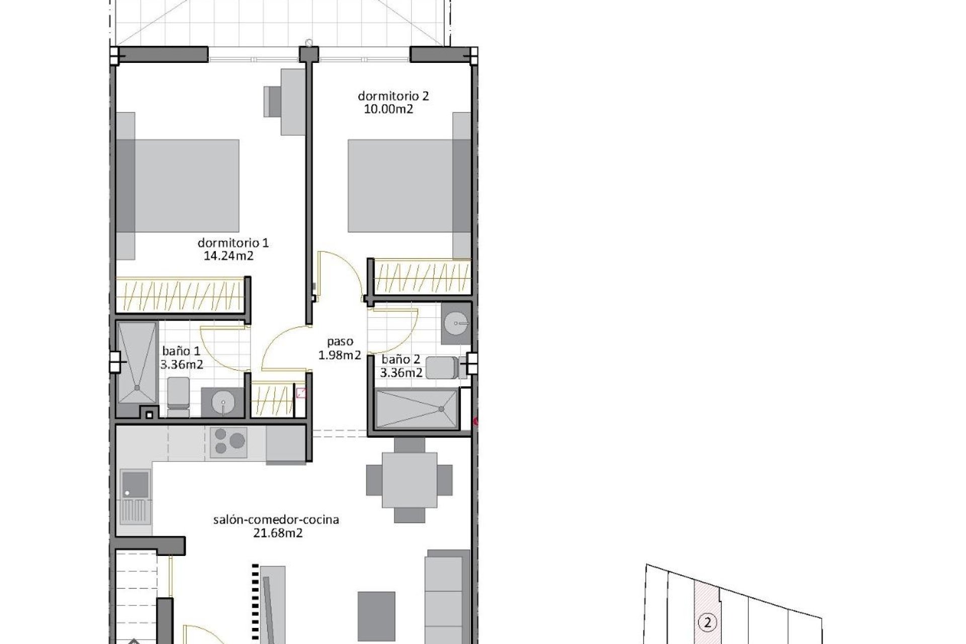
Détails du modèle rez-de-chaussée/jardin
Entrez dans un espace de vie lumineux qui se connecte de manière transparente à la salle à manger et à une cuisine entièrement équipée. De grandes portes coulissantes en verre laissent entrer la lumière naturelle, créant une ambiance ouverte et accueillante. L'aménagement comprend deux chambres spacieuses, dont la chambre principale dotée d'une salle de bains attenante, ainsi qu'une salle de bains familiale moderne.
Points forts du modèle Penthouse
L'accès au penthouse se fait par un escalier privé menant à une grande terrasse. À l'intérieur, un salon et une salle à manger ouverts se mêlent à une cuisine entièrement équipée. Deux chambres à coucher sont incluses, la chambre principale disposant d'une salle de bains attenante. Un solarium privé sur le toit, accessible depuis la cuisine, constitue un endroit idéal pour se détendre ou se divertir. Des rangements supplémentaires au rez-de-chaussée assurent la commodité de l'ensemble.
Principales caractéristiques et commodités
Éclairage LED intérieur et extérieur.
Cuisine entièrement équipée avec plaque de cuisson à induction, four, lave-vaisselle et réfrigérateur/congélateur.
Climatisation installée.
Place de parking réservée.
Jardin commun paysager avec piscine pour les résidents.
San Pedro del Pinatar : charme côtier et commodité
Situé sur les magnifiques côtes de la Mar Menor et de la Méditerranée, San Pedro del Pinatar est un paradis pour les amateurs de sports nautiques, de voile et de plage. La région voisine de Lo Pagán offre des bains de boue naturels, des eaux calmes et des services tout au long de l'année, notamment des boutiques, des restaurants et des installations de loisirs.
Distances des principaux centres d'intérêt :
Centre commercial Dos Mares : Centre commercial Dos Mares : 5 km
Aéroport de Murcia/Corvera : 30 km
Aéroport d'Alicante : 75 km
Terrains de golf locaux : 10-20 km
Marina et clubs de voile : 2 km
Réservez votre maison de rêve dès aujourd'hui
L'achèvement des travaux étant prévu pour la fin de l'année 2025, c'est le moment idéal pour réserver votre nouvelle maison à San Pedro del Pinatar. Ne manquez pas cette occasion de profiter d'un mélange d'élégance moderne et de tranquillité côtière. Contactez-nous dès aujourd'hui pour en savoir plus ou pour organiser une visite !