VILLAS NEUVES À FINESTRAT
Nouvelle construction de villas modernes à Finestrat.
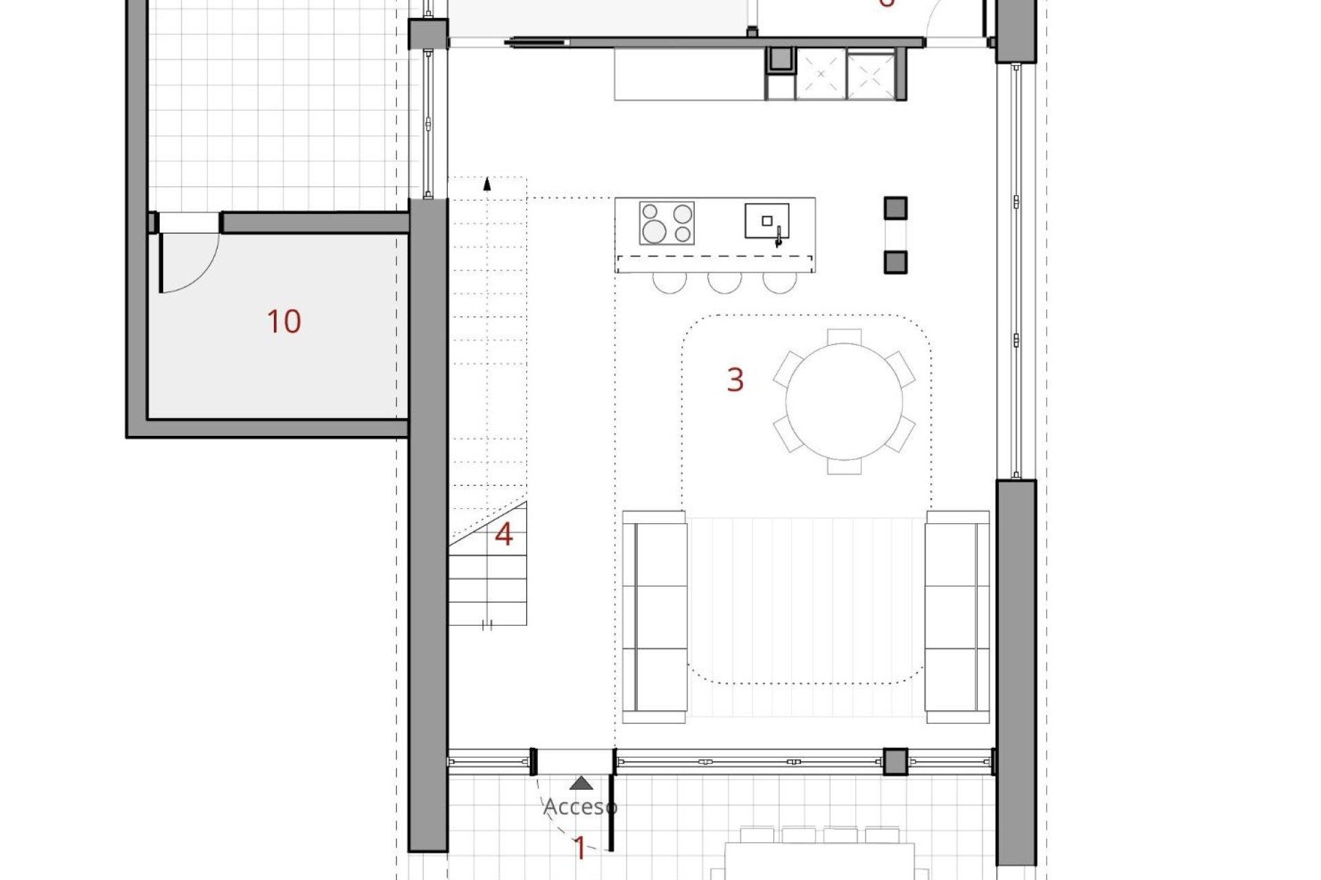
Villas avec 3 chambres et 3 salles de bains, cuisine ouverte avec coin salon, terrasse avec vue magnifique sur Benidorm, jardin privé avec piscine et place de parking.
Il est conçu comme un espace entièrement praticable avec des chemins intérieurs et extérieurs qui fournissent un accès indépendant à chaque étage. Cette conception offre différentes perspectives sur le complexe architectural et ses environs, avec la mer et la Sierra Cortina comme toile de fond pittoresque.
L'entrée principale de la villa est située dans la partie inférieure du terrain, avec un grand parking pour deux véhicules. Une pièce d'eau avec des chaises longues vous introduit au rez-de-chaussée, caractérisé par de larges murs ornés de maçonnerie. Dans le prolongement du salon se trouve une terrasse, rendue possible par une grande fenêtre pliante. Des volets en bois sur les murs en maçonnerie offrent un espace extérieur partiellement couvert pour plus de confort.
La piscine, avec ses teintes aigue-marine et son revêtement en gresite, est adjacente à un trottoir réalisé en carreaux de porcelaine antidérapants à l'aspect boisé.
Cet espace comprend également une zone de barbecue qui peut être personnalisée en fonction des besoins de l'utilisateur et à laquelle on accède depuis une zone pavée à travers le terrain naturel.
Finestrat se trouve dans la région Marina Baixa de la Costa Blanca, à proximité de la ville voisine de Benidorm et à environ 40 kilomètres de la ville d'Alicante et de l'aéroport international.
Le village est situé sur le flanc de la montagne Puig Campana et offre une vue magnifique sur les montagnes, la côte et la mer Méditerranée.
Benidorm se trouve à cinq minutes en voiture des propriétés et offre tous les services dont vous avez besoin, notamment des magasins, des bars, des restaurants, des supermarchés, des banques, des pharmacies et plusieurs écoles privées internationales.