Bungalows neufs à San Pedro del Pinatar : un cadre de vie moderne près de la plage
Maisons contemporaines en bord de mer à El Salero, San Pedro del Pinatar
Découvrez ces 12 bungalows neufs et élégants situés à El Salero, un charmant quartier résidentiel de San Pedro del Pinatar, sur la Costa Cálida. Cet emplacement très prisé offre un équilibre parfait entre la vie en bord de mer et le confort du quotidien, avec des supermarchés, des restaurants, des cafés et tous les services essentiels accessibles à pied.
San Pedro del Pinatar est réputé pour ses bains de boue naturels, ses marais salants et son style de vie méditerranéen décontracté. Avec une communauté accueillante et un climat doux toute l'année, c'est une destination idéale tant pour une résidence principale que pour une résidence secondaire.
Emplacement de choix à proximité du Mar Menor et de la mer Méditerranée
Ces propriétés sont idéalement situées à seulement 2 km des plages de Villa Nanitos sur le Mar Menor et d’El Mojón sur la mer Méditerranée, toutes deux facilement accessibles en moins de 20 minutes à pied. La région est parfaite pour les amateurs de sports nautiques, avec des ports de plaisance, des clubs de voile et des promenades côtières à proximité.
Design moderne et agencements fonctionnels
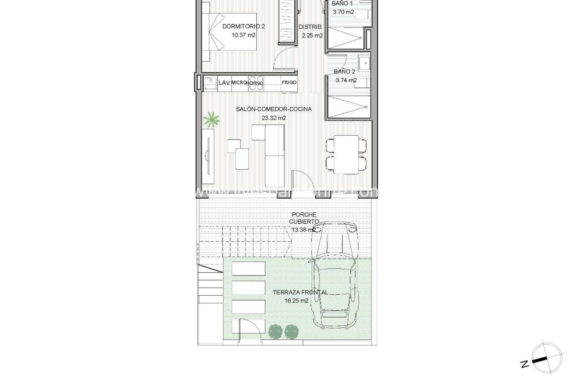
Le programme propose des bungalows modernes de 2 chambres et 2 salles de bains, conçus avec des cuisines ouvertes et des espaces de vie lumineux qui maximisent la lumière naturelle.
Les logements du rez-de-chaussée disposent de terrasses privées spacieuses avec la possibilité d’ajouter une piscine privée moyennant un supplément. Les propriétés du dernier étage comprennent un solarium privé sur le toit avec une piscine déjà incluse, offrant l’espace idéal pour se détendre et profiter du soleil méditerranéen.
Chaque propriété dispose également d’une place de parking privée.
Finitions de haute qualité et efficacité énergétique
Ces logements sont construits avec des matériaux de haute qualité et des équipements modernes pour garantir confort et efficacité. Ils comprennent notamment la pré-installation pour la climatisation par conduits, un système aérothermique pour l'eau chaude et des volets électriques.
Les salles de bains sont entièrement équipées avec des meubles-lavabos, des miroirs, des parois de douche et le chauffage au sol. Un ensemble complet d'éclairage LED est inclus à l'intérieur comme à l'extérieur, rehaussant l'ambiance générale de la propriété.
Excellente desserte et commodités à proximité
San Pedro del Pinatar offre d'excellentes liaisons vers les principales destinations. Le centre commercial Dos Mares se trouve à environ 4 km, tandis que l'aéroport international de Murcie est à environ 35 km. L'aéroport d'Alicante est accessible à environ 75 km.
Plusieurs terrains de golf et ports de plaisance sont situés à quelques minutes en voiture, ce qui en fait un emplacement idéal pour les loisirs et les activités de détente.
Une propriété idéale pour un investissement ou pour y vivre toute l'année
Ces bungalows neufs allient un design moderne, un emplacement côtier de premier choix et des finitions de haute qualité, ce qui en fait un excellent choix pour un investissement, des vacances ou une résidence permanente.
Contactez-nous dès aujourd'hui pour obtenir plus d'informations ou pour organiser une visite et réserver votre nouvelle maison à San Pedro del Pinatar.