NIEUWBOUW VILLA'S IN LA NUCIA
Nieuwbouw Residentieel van comfortabele en luxueuze villa's met privé zwembaden in La Nucia.
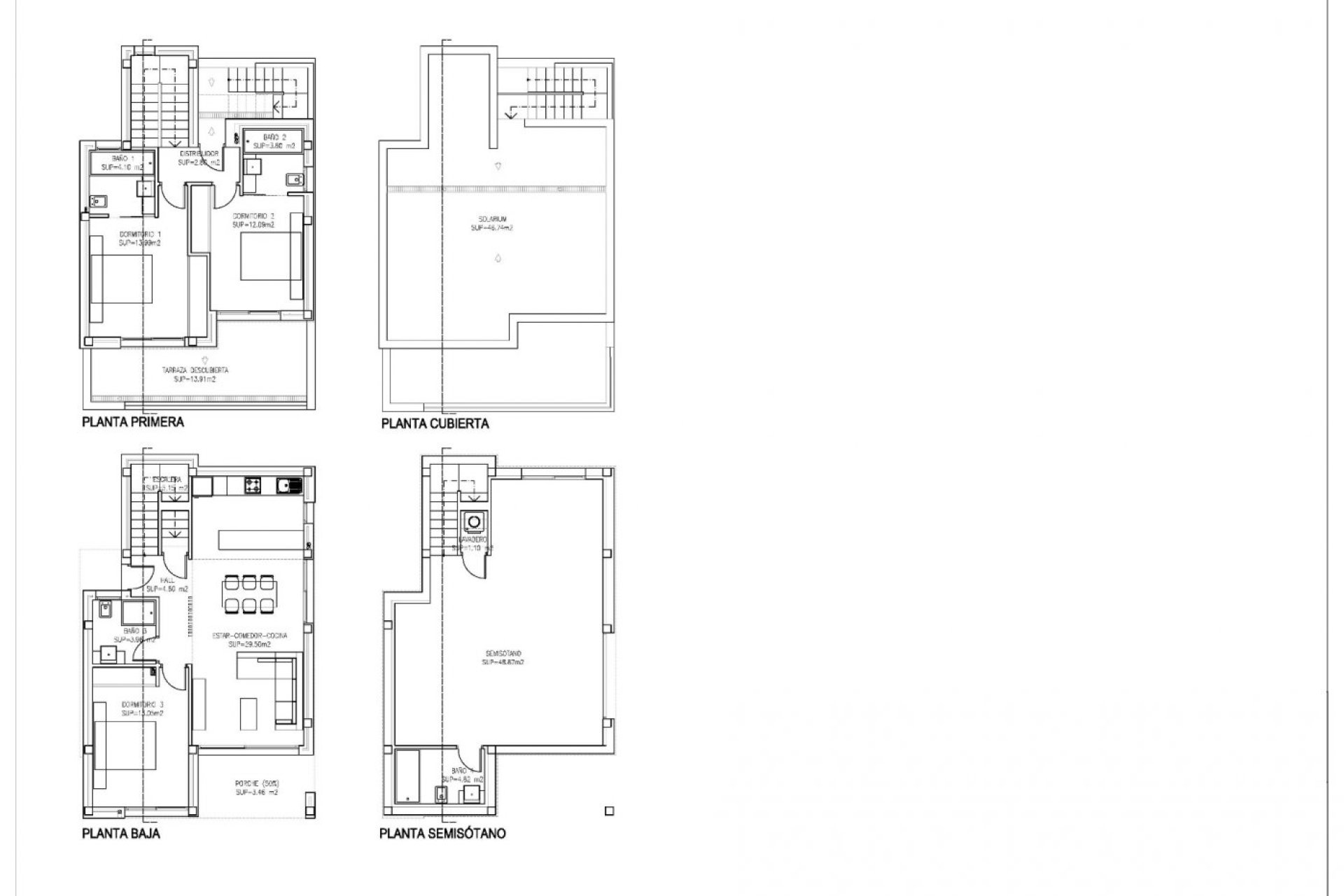
De villa's bestaan uit 3 grote tweepersoonskamers met ingebouwde en bekleedde kasten.Een kamer is op de begane grond en de andere twee op de eerste verdieping.
Er zijn 4 volledig afgewerkte badkamers met glazen schermen, porseleinen toiletten en thermostatische kranen in de douches, een op de eerste verdieping, een andere in de garage en de andere 2 en suite in de kamers op de eerste verdieping.
Lichte woonkamer met grote ramen die toegang geven tot het privé perceel met zwembad en kunstgras waar u kunt genieten en ontspannen.
Volledig ingerichte Amerikaanse keuken met wand-en onderkasten, high-end apparatuur en een eiland met onderkasten, SILESTONE aanrechtblad met ingebouwde RVS spoelbak en designer RVS afzuigkap.
Installatie van Airconditioning en Verwarming via AEROTHERMAL leidingen met 2 onafhankelijke machines (dubbele zone).
Comfort en design PORCELANOSA bieden exclusieve afwerkingen, zoals zwevende vloeren, natuurstenen vloeren en top kwaliteit steengoed.De hele Villa heeft binnen en buiten LED-verlichting en elektrische rolluiken.
Residencial gelegen in een exclusieve omgeving van grote kwaliteit en met alle comfort; terras, solarium, prive garage voor 2 voertuigen, tuin gebieden, urbanisatie, zwembad en alles wat je je kunt voorstellen.
Residentieel toegewijd aan het milieu, uitgerust met zonnepanelen voor de productie van sanitair warm water, LED-verlichting en THERMAL-ACOUSTIC isolatie.
La Nucía is een gemeente in de comarca van Marina Baixa, Alicante. Zij grenst aan de gemeenten Altea, Callosa d'En Sarrià, Benidorm, Polop en L'Alfàs del Pi.
La Nucia is gelegen in een fruitvallei tussen Benidorm en Callosa d'En Sarrià, op 3 km van de kust van Altea. Het stedelijk centrum ligt op een voorgebergte met uitzicht op de Middellandse Zee, 51 km ten noorden van Alicante en 8 km ten noorden van Benidorm.
AFSTANDEN:
- Toegang vanaf snelweg A.
- 5 minuten van Terra Mitica.
- 5 minuten van de ELIANS school.
- 5 minuten van supermarkten, cafés en allerlei diensten.
- 10 minuten van het strand van Benidorm.
- 15 minuten van Playa del Albir.
- 20 minuten van het kasteel van Guadalest.
- 40 km van de luchthaven Alicante-Elche.