NIEUWBOUW HALFVRIJSTAANDE VILLA'S IN ROLDAN
Nieuwbouw luxe complex van een of twee verdiepingen semi-vrijstaande villa's in Roldan.
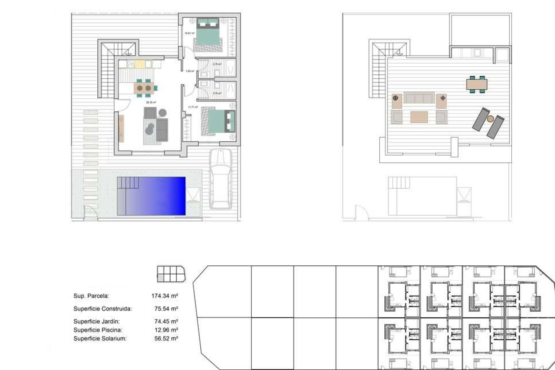
U heeft de keuze uit twee-onder-een-kap villa's met 2 slaapkamers, 2 badkamers verdeeld over één verdieping met solarium of met 3 slaapkamers, 3 badkamers verdeeld over twee verdiepingen met een groot terras.
Op de bovenste verdieping, op het terras of solarium heeft u een zomerkeuken die u toelaat om alle uren van de zon te genieten, elke dag van het jaar.
Alle villa's hebben een eigen tuin met zwembad en parkeerplaats.
Ontworpen met een eigentijdse stijl en open gepland concept, bestaande uit een volledig uitgeruste keuken en woon-eetkamer.
De ontwikkeling is gelegen in Roldán (Murcia), binnen een gated en veiligheid controle resort. Het ligt dicht bij het strand, omringd door diensten, parken, sportfaciliteiten en verschillende golfbanen.
De woning zal voldoen aan de hoogste normen en zal worden uitgerust met:
Prive zwembad voorgeïnstalleerd voor verwarmingssysteem en met zonne-douche.
Keuken volledig ingericht en uitgerust met oven, magnetron, koelkast, geïntegreerde vaatwasser en afzuigkap. Ook, centrale houten eiland.
Verlichting: LED binnen de woning en in de buitenruimtes.
Beklede kasten met laden.
Volledig ingerichte badkamers met hangend toilet, doucheschermen, badmeubel, spiegel met licht en regendouche.
Zomerkeuken in solarium.
Pre-installatie voor airconditioning via leidingen.
Parkeerplaats op het perceel.
Roldan zelf is een traditionele stad met alle lokale voorzieningen die u nodig heeft, waaronder supermarkten, restaurants, bars, kliniek, apotheek, politiebureau, benzinestation, monteurs, tandartsen, artsen en nog veel meer.
De nabijgelegen golf resorts van La Torre, & Terrazas zijn gemakkelijk bereikbaar, Corvera Airport ligt op 15 minuten afstand en de stranden van de Mar Menor slechts 20 minuten rijden.