Nieuwbouwwoningen met privézwembad in Daya Nueva, Costa Blanca
Moderne halfvrijstaande en vrijstaande villa's met uitstekend ontwerp
Ontdek dit exclusieve project van drie nieuwbouwwoningen, zowel halfvrijstaand als vrijstaand, gelegen in het charmante dorpje Daya Nueva, in het zuiden van de provincie Alicante. Deze stijlvolle woningen zijn ontworpen met het oog op comfort, licht en privacy en bieden een uitzonderlijke woonervaring op slechts enkele minuten van de stranden van La Marina en Guardamar del Segura.
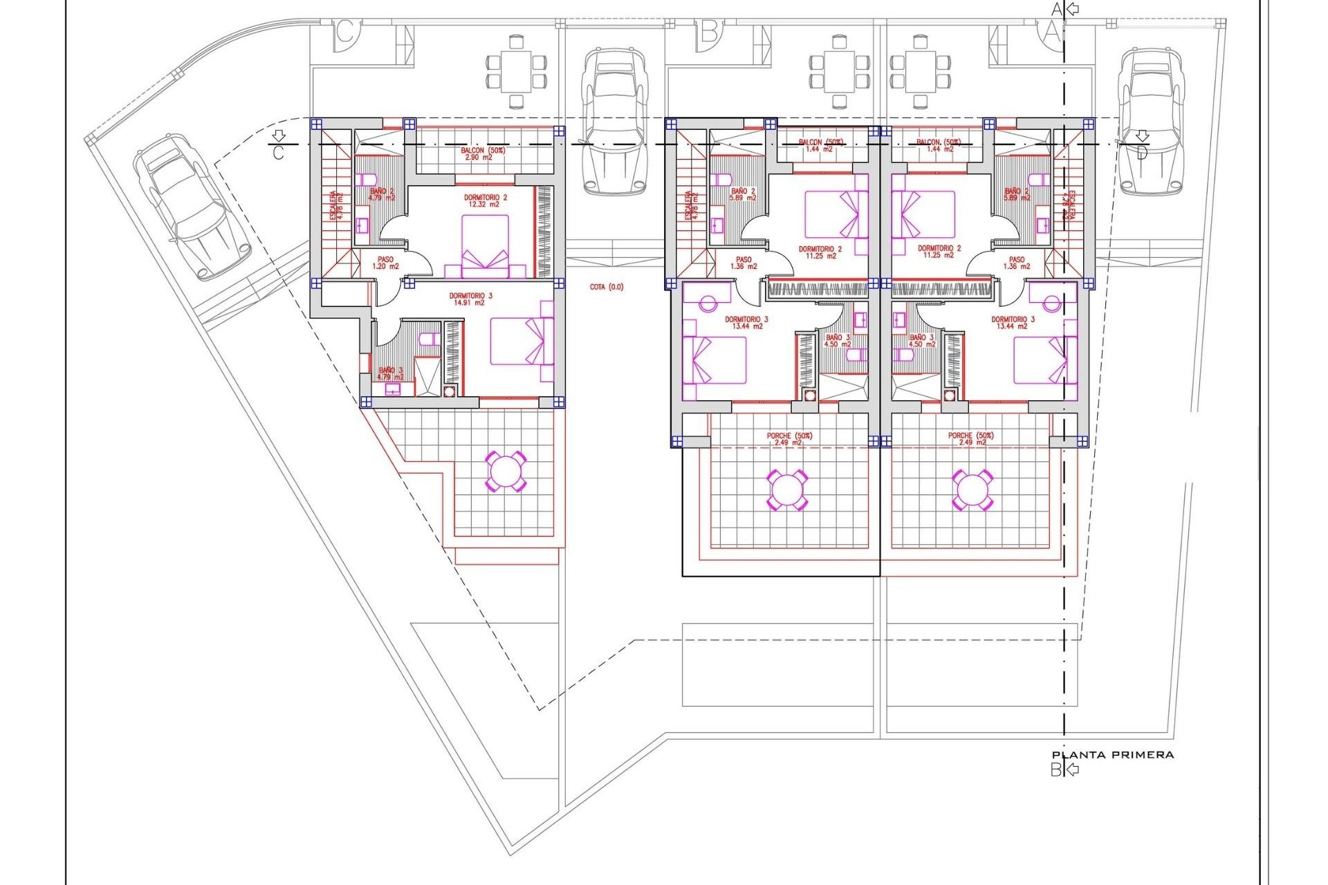
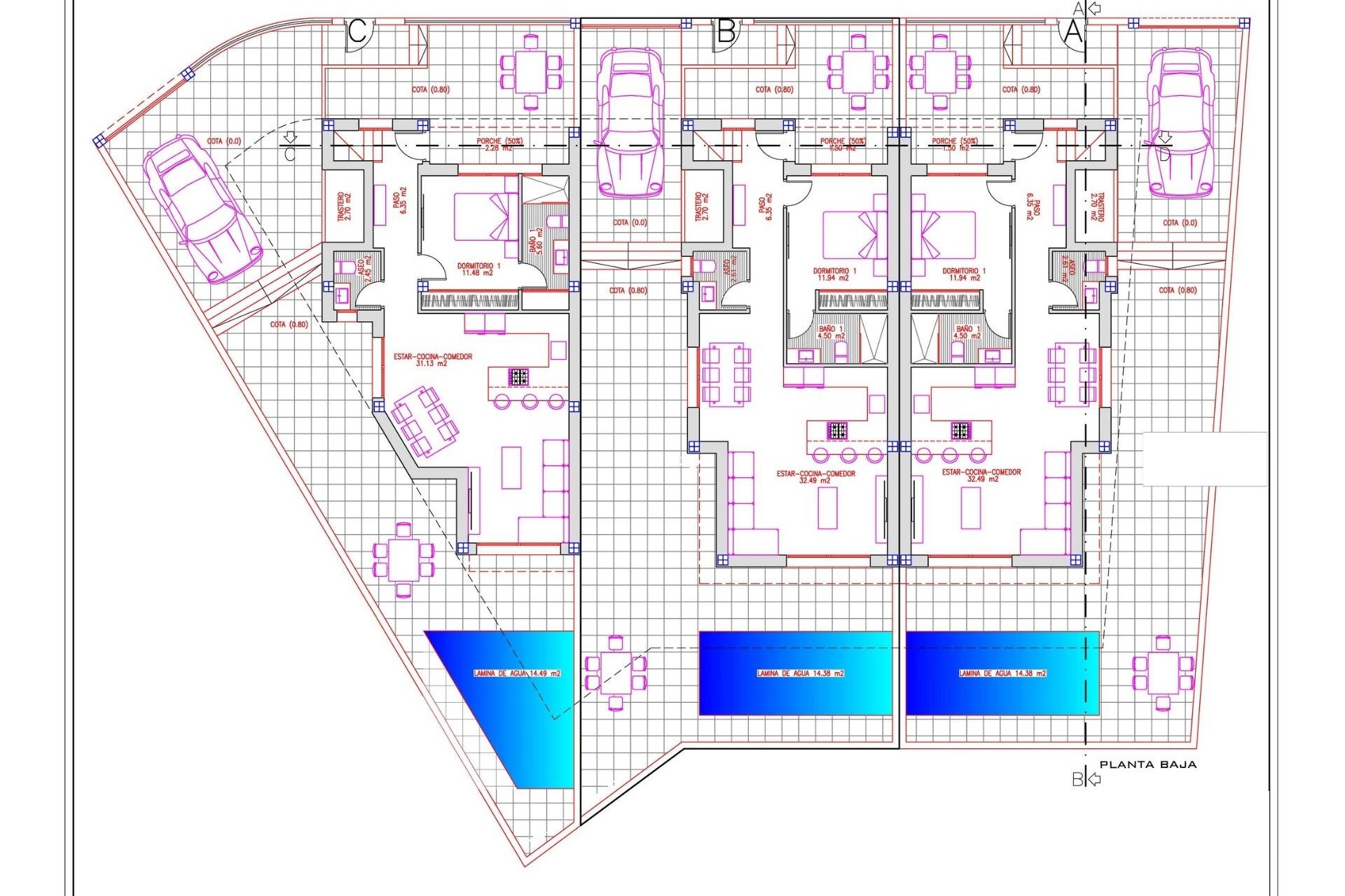
Elke villa beschikt over een lichte en ruime woon-eetkamer, een open keuken met een ontbijtbar, drie slaapkamers, drie complete badkamers en een gastentoilet. Geniet van het mediterrane klimaat op de twee bovenste terrassen, ontspan bij uw privézwembad of parkeer uw auto op uw eigen perceel.
Comfort en kwaliteit in elk detail
Deze woningen zijn ontworpen om maximaal te profiteren van het natuurlijke licht en het buitenleven. Belangrijkste kenmerken:
Privézwembad en parkeerplaats op eigen terrein
Twee overdekte terrassen op de bovenverdieping
Optioneel dakterras voor extra buitenruimte (tegen meerprijs)
Volledig ingerichte badkamers met doucheschermen
Pre-Airconditioning met luchtkanalen
Geautomatiseerde aluminium rolluiken in slaapkamers, keuken en badkamers
De open begane grond combineert de keuken, eetkamer en woonkamer tot een samenhangende en lichte leefruimte die direct uitkomt op het terras en het zwembad — perfect om te ontspannen of gasten te ontvangen.
Toplocatie dicht bij alle voorzieningen
Deze villa's liggen in een rustige woonwijk van Daya Nueva, op slechts 3 minuten lopen van het dorpscentrum, waar u winkels, restaurants en alle belangrijke voorzieningen vindt. Deze rustige omgeving biedt een ideale mix van dorpse charme en het gemak van de kust.
Afstanden tot belangrijke bezienswaardigheden:
Stranden van Guardamar del Segura en La Marina: 12 km (10 minuten)
La Marquesa Golf (Ciudad Quesada): 9 km (10 minuten)
Winkelcentrum Habaneras (Torrevieja): 20 km (20 minuten)
Internationale luchthaven Alicante: 38 km (25 minuten)
Vega Baja-ziekenhuis: 14 km (15 minuten)
Uw ideale huis aan de Costa Blanca wacht op u
Deze villa's zijn perfect als permanente woning, vakantiehuis of investering. Met hun moderne architectuur, doordachte ontwerp en rustige maar goed bereikbare ligging bieden ze een unieke kans om een kwaliteitswoning aan de Costa Blanca te bezitten. Neem vandaag nog contact met ons op voor meer informatie en om een bezoek te plannen.