Luxe villa direct aan het meer in het Santa Rosalia Lake and Life Resort in Murcia
Exclusieve nieuwbouwwilla in een unieke resortomgeving
Ontdek deze uitzonderlijke nieuwbouwwilla direct aan het meer in het prestigieuze Santa Rosalia Lake and Life Resort in de regio Murcia. Gelegen op een royaal perceel van 500 m², biedt deze woning een zeldzame kans om te genieten van moderne architectuur, privacy en een resortlevensstijl in een van de meest innovatieve projecten in Zuid-Spanje.
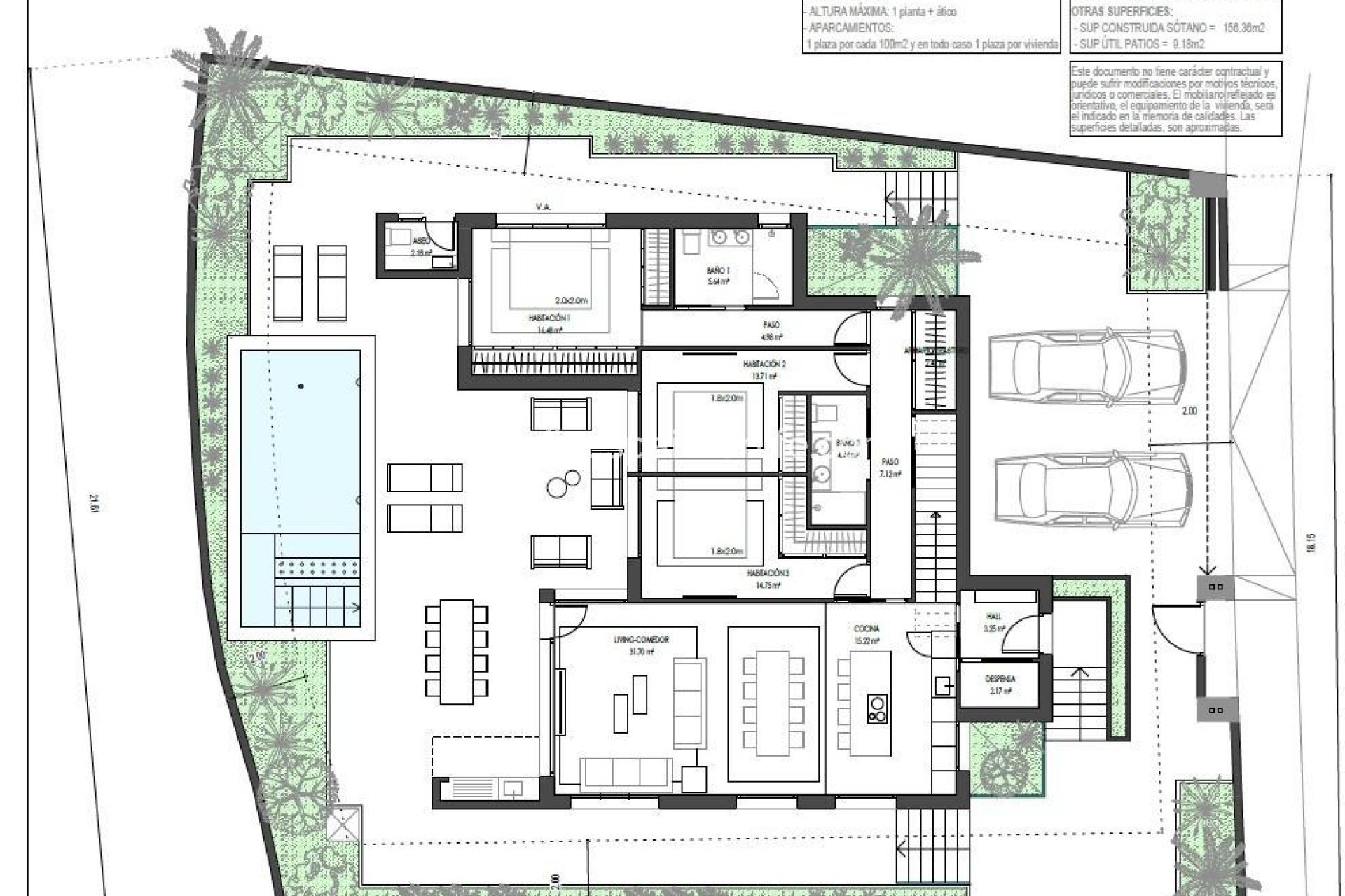
De villa is verdeeld over de begane grond, een kelderverdieping en een dakterras, en combineert een eigentijds ontwerp met ruime woonruimtes en hoogwaardige afwerkingen. De bevoorrechte ligging biedt direct uitzicht op het prachtige kunstmatige meer, wat zorgt voor een rustige en exclusieve omgeving.
Ruim ontwerp met woonkamer met dubbele hoogte
De begane grond beschikt over een lichte, open woon- en eetkamer met een spectaculair dubbelhoog plafond, wat het gevoel van ruimte en natuurlijk licht versterkt. De moderne keuken is volledig uitgerust met BOSCH-apparatuur en sluit naadloos aan op het buitenterras en het privézwembad.
De woning beschikt over drie slaapkamers en drie badkamers, evenals een gastentoilet. De indeling is ontworpen om zowel comfort als functionaliteit te bieden, waardoor het ideaal is voor gezinsleven of het ontvangen van gasten.
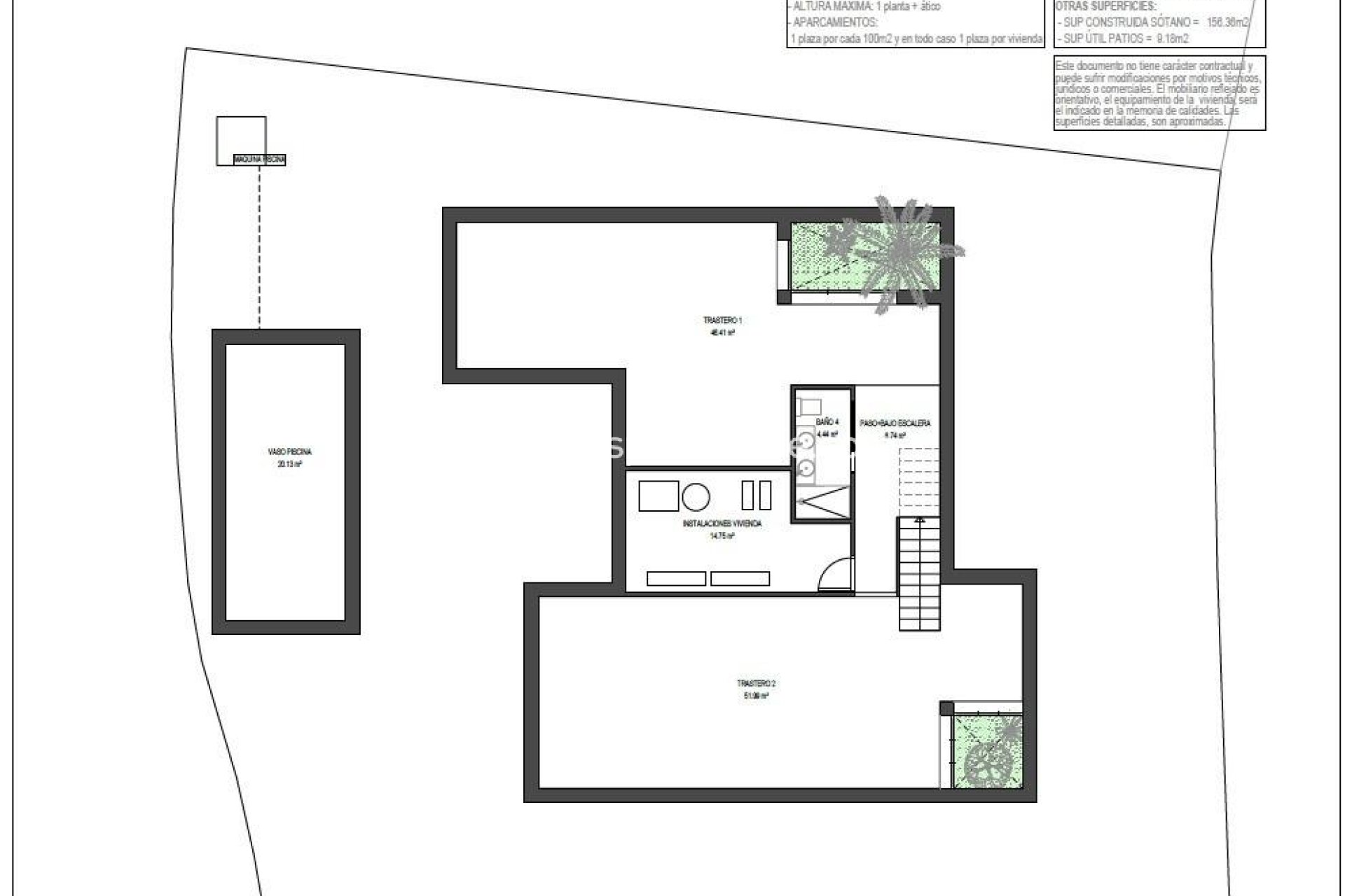
Kelder met natuurlijk licht en aanpassingsmogelijkheden
Een opvallend kenmerk van deze villa is de ruime kelder met natuurlijk licht dat binnenkomt via Engelse patio's. Dit niveau biedt grote flexibiliteit en kan worden aangepast tot extra woonruimtes, zoals een fitnessruimte, thuisbioscoop, gastenverblijf of kantoor.
De kelder is voorzien van voorinstallatie voor airconditioning en aansluitingen voor water en elektriciteit, waardoor eigenaren de ruimte naar eigen behoefte kunnen inrichten.
Privé-solarium en buitenruimtes
Het solarium op het dak biedt een ideale ruimte voor ontspanning en buitenleven, met voorinstallatie voor een jacuzzi en een vrij uitzicht over het meer en het omliggende resort. De villa beschikt ook over een privézwembad en aangelegde buitenruimtes die zijn ontworpen om het hele jaar door van het mediterrane klimaat te genieten.
Hoogwaardige voorzieningen en energie-efficiëntie
De woning is gebouwd met hoogwaardige materialen en beschikt over een versterkte veiligheidsdeur, airconditioning via luchtkanalen, zes fotovoltaïsche zonnepanelen en hoogwaardige afwerkingen in het hele huis.
Resortleven met uitzonderlijke voorzieningen
Santa Rosalia Lake and Life Resort is een omheinde gemeenschap met 24-uursbeveiliging, ontworpen rond een groengebied van 126.000 m². In het hart ligt een spectaculair, kristalhelder meer van bijna 17.000 m², omringd door witte zandstranden, palmbomen en recreatiegebieden.
Bewoners kunnen genieten van wandel- en fietspaden, sportfaciliteiten, paddle- en tennisbanen, minigolf, hondenparken, een clubhuis en strandbars, wat zorgt voor een unieke levensstijl.
Toplocatie nabij stranden en golfbanen
Het resort is ideaal gelegen op minder dan 4 km van de stranden van de Mar Menor en de stad Los Alcázares. Cartagena ligt op slechts 15 km afstand en de internationale luchthaven van Murcia ligt op 22 km afstand. Ook zijn er verschillende golfbanen op korte rijafstand te vinden.
Ideale investering en kans op een luxe levensstijl
Deze villa aan het meer biedt een unieke kans om te genieten van een luxe levensstijl in een resortomgeving met uitzonderlijke voorzieningen en een sterk investeringspotentieel.
Neem vandaag nog contact met ons op voor meer informatie of om een privébezichtiging te regelen van deze exclusieve villa in het Santa Rosalia Lake and Life Resort.