Live Spain for Life är glada att hjälpa dig att upptäcka dessa helt nya lägenheter och takvåningar i ett av de mest eftertraktade områdena i Torrevieja, bara 600 meter från stranden Playa del Cura och 400 meter från strandpromenaden. Beläget i stadens centrum erbjuder detta livliga kvarter alla nödvändiga bekvämligheter inom gångavstånd, inklusive mataffärer, butiker, restauranger, kaféer och kollektivtrafik. Torrevieja är en välkänd kuststad på Costa Blanca, känd för sitt milda medelhavsklimat, livliga atmosfär och året-runt-liv vid havet.
Moderna lägenheter med rymliga planlösningar
Denna exklusiva nyproduktion består av endast 14 lägenheter och takvåningar, inklusive studios samt bostäder med 1 eller 2 sovrum, designade för att erbjuda komfort, funktionalitet och modern stil. Alla bostäder har ett öppet kök som är anslutet till vardagsrummet/matsalen och är utrustat med vitvaror, vilket skapar ljusa och välkomnande interiörer. Sovrummen har inbyggda garderober och badrummen är fullt utrustade med möbler, speglar, golvvärme och duschväggar.
Kvalitativa ytskikt och energieffektiva funktioner
Lägenheterna är byggda med högkvalitativa material och ett starkt fokus på energieffektivitet. Exteriöra aluminiumfönster har teknologi för bruten köldbrygga och dubbelglas för termisk och akustisk isolering. Motoriserade persienner ger extra komfort och säkerhet. Varje bostad har förinstallation för luftkonditionering och kanalvärme, förstärkta ytterdörrar, belysningspaket och vitlackerade innerdörrar. Varmvatten produceras av ett aerotermiskt system, vilket minskar energiförbrukningen och förbättrar hållbarheten.
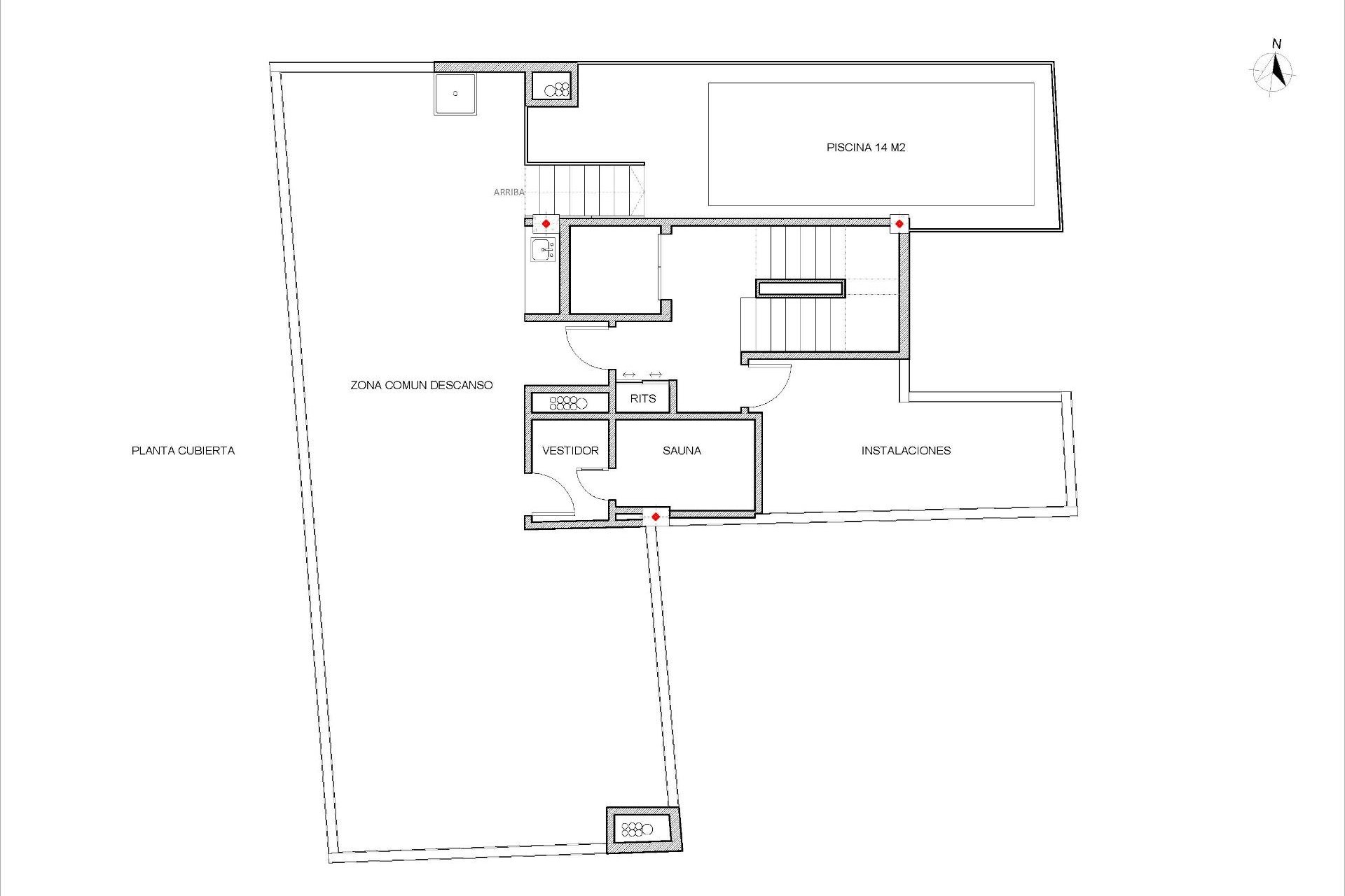
Takterrass med gemensam pool
Boende kan njuta av en exklusiv takterrass med gemensam pool, grill, bastu och solområde med solstolar, tillgänglig via hiss eller trappa. Detta privata område är perfekt för att koppla av, sola och njuta av panoramautsikt över staden. Det erbjuder en fridfull tillflyktsort ovanför Torreviejas livliga gator och tillför betydande värde till projektet.
Livsstil och omgivningar i Torrevieja – kontakta oss idag för en visning...
Torrevieja är känt för sin långa kustlinje, sandstränder och ikoniska saltsjöar. Naturparken Lagunas de La Mata y Torrevieja ligger cirka 5 km bort och erbjuder vandringsleder och unika landskap. Flera golfbanor, såsom Villamartin Golf och Las Colinas Golf, ligger mellan 12 och 18 km bort. Marinan och hamnen i Torrevieja ligger ungefär 1 km bort. Alicantes flygplats ligger cirka 45 km bort och Murcia International Airport cirka 65 km bort, båda med utmärkta Europaförbindelser.
På Live Spain for Life är vi stolta över att vi, efter bara några samtal eller mejl med dig, med vår erfarenhet, vanligtvis kan fastställa ganska exakt vad du söker och visa dig just de bostäderna. Vi är stolta över att vara ett familjeföretag som faktiskt bor här i området och har specialiserat oss på lantliga fastigheter, återförsäljning och nyproduktion i över 20 år.
Vår portfölj är omfattande och vi försöker endast erbjuda dig bostäder som vi har direkt från ägarna själva. Vi tror att vi skiljer oss från många andra mäklare eftersom vi också håller allting så uppdaterat som möjligt och bara annonserar bostäder som vi vet är aktuella och tillgängliga. Informationen är endast vägledande och utgör INTE de fullständiga fakta och detaljerna om de bostäder vi har till salu. Det är upp till köparen och deras juridiska team att fastställa den juridiska situationen och bekräfta detaljerna för varje bostad som erbjuds till försäljning före tillträde.
Vi berättar vad du verkligen behöver veta när du köper bostad på Costa Blanca South, Spanien