Dessa exklusiva nybyggda parhusvillor är belägna i den charmiga staden Benijófar, ett av de mest eftertraktade områdena på Costa Blanca. Benijófar är känt för sin blandning av tradition och modern livsstil och erbjuder alla nödvändiga tjänster inklusive stormarknader, apotek, banker, restauranger och lokala butiker. Projektet är strategiskt placerat endast 10 km från de gyllene stränderna i Guardamar del Segura och bara 30 km från Alicantes flygplats, vilket gör det till ett perfekt läge både för permanent boende och semester.
Rymlig och Modern Design
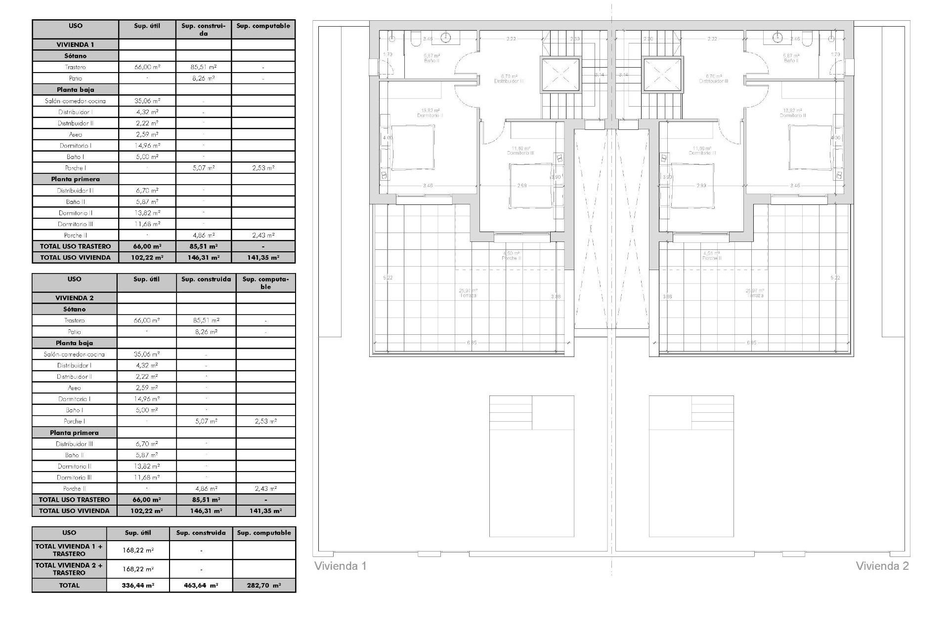
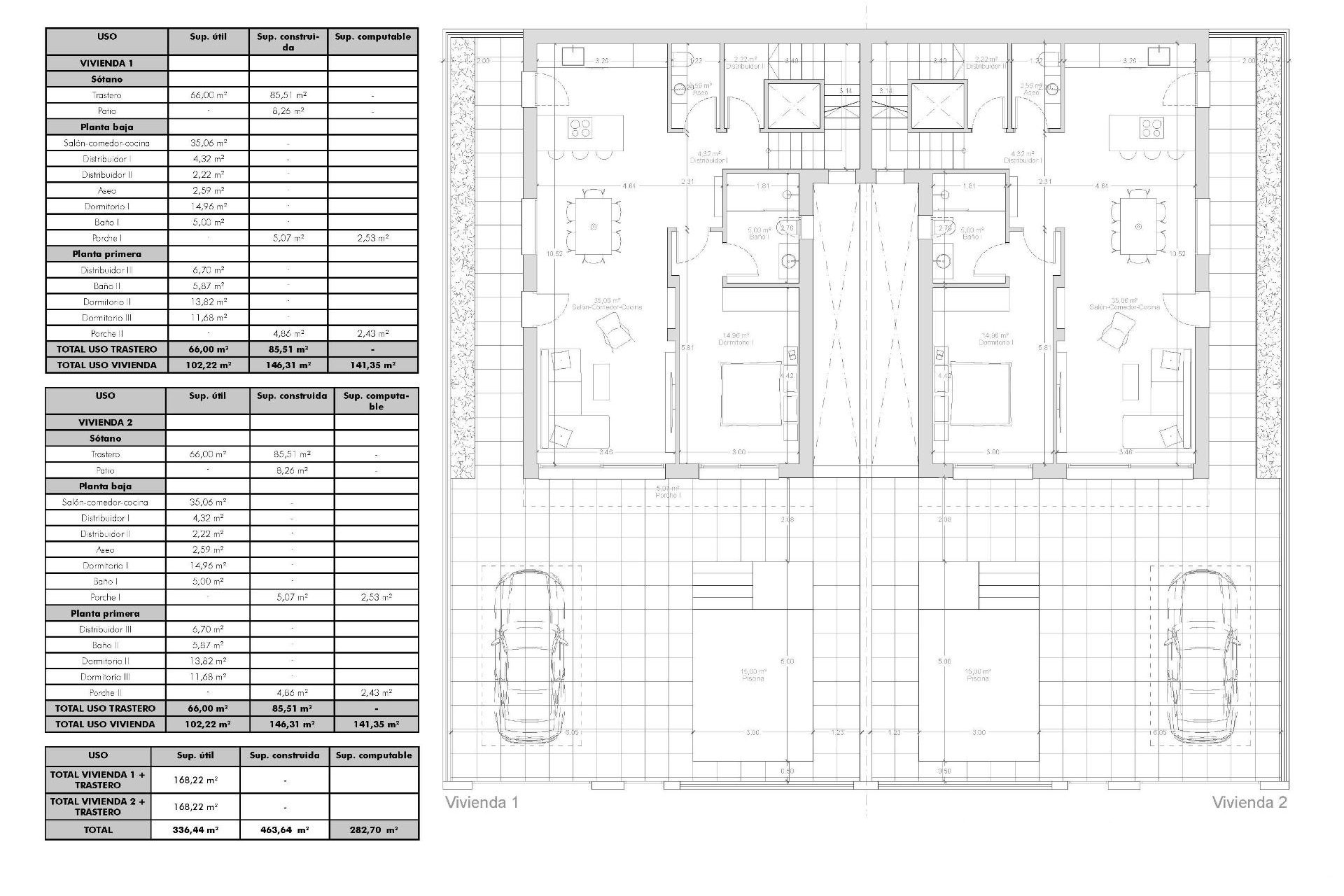
Varje villa är designad i en modern stil som maximerar utrymme och naturligt ljus. Planlösningen inkluderar tre sovrum (ett på bottenvåningen och två på första våningen) och tre badrum (inklusive ett i källaren), vilket gör dem perfekta för familjer och gäster. Det öppna vardagsrummet med matplats smälter samman med det fullt utrustade köket och skapar en varm och funktionell miljö. Stora fönster bidrar till ljusinsläpp i hela hemmet.
Premiumfunktioner och Extra
Dessa villor utmärker sig genom sina högkvalitativa ytskikt och genomtänkta detaljer:
66 m2 källare med badrum, grovkök och tvättstuga
Privat pool, solarium med grill och diskho
Dekorativ öppen spis i vardagsrummet
Privat parkering på tomten
Hiss från källarplan till översta våningen
3 solpaneler och LED-belysning i hela huset
Förinstallerad luftkonditionering
Fullt utrustade badrum med möbler och duschväggar
Tomtstorlekar från 200 m2
Livsstil och Omgivning
Benijófar kombinerar charmen av en traditionell spansk by med bekvämligheten av moderna tjänster. Naturälskare kan njuta av den närliggande naturparken, perfekt för promenader och cykling. För golfentusiaster ligger La Marquesa Golf bara 5 km bort, och flera andra högklassiga banor finns inom en radie av 15 km. Familjer kan besöka vattenparkerna i Rojales (4 km) och Torrevieja (12 km), eller utforska den livliga staden Torrevieja, endast 12 km bort.
Utmärkt Kommunikation
Villorna har enkel tillgång till motorvägarna N-332 och AP-7, vilket ger snabba förbindelser till Alicante, Elche, Orihuela Costa och Murcia. Området erbjuder en perfekt balans mellan lugn, bekvämligheter och tillgänglighet.
Upplev lyx, komfort och ett medelhavsliv i dessa fantastiska nybyggda villor i Benijófar. Kontakta oss idag för mer information och för att boka en visning av ditt framtida hem.
På Live Spain for Life är vi stolta över att vi efter bara några samtal eller mejl, tack vare vår erfarenhet, oftast kan fastställa exakt vad du söker och visa dig just dessa fastigheter. Vi är stolta över att vara ett familjeföretag som faktiskt bor här i området och har specialiserat oss på lantliga fastigheter, återförsäljning och nybyggnation i nästan 20 år.
Vårt utbud är omfattande och vi försöker endast förmedla fastigheter som vi har direkt från ägarna själva. Vi anser att vi skiljer oss från många andra mäklare eftersom vi också håller allt så uppdaterat som möjligt och endast annonserar fastigheter som vi vet är aktuella och tillgängliga. Informationen är endast vägledande och utgör INTE fullständiga fakta och detaljer om de fastigheter vi erbjuder till försäljning. Det är upp till köparen och dennes juridiska ombud att fastställa den juridiska situationen och bekräfta detaljerna för varje fastighet som erbjuds innan köpet slutförs.
Vi berättar vad du verkligen behöver veta när du köper fastighet på Costa Blanca South, Spanien