Live Spain for Life bietet Ihnen diese außergewöhnliche Neubau-Villa in La Alberca, einer ruhigen Wohngegend in den Bergen von Polop. Umgeben von Wald und Natur bietet die Immobilie einen Panoramablick auf das Mittelmeer, die Berge und die historische Stadt Polop. Die Villa ist mit vertikaler architektonischer Eleganz gestaltet und vereint Privatsphäre, Funktionalität und ein nahtloses Wohnen zwischen Innen- und Außenbereich.
Polop ist ein charmantes Dorf an der Costa Blanca, das für seine traditionelle Atmosphäre und natürliche Schönheit bekannt ist. Die Villa liegt in der Nähe aller Annehmlichkeiten in La Nucia, darunter Geschäfte, Restaurants, Sportzentren und Schulen. Die Strände und lebhaften Küstenorte wie Benidorm und Altea sind nur 15 Minuten entfernt.
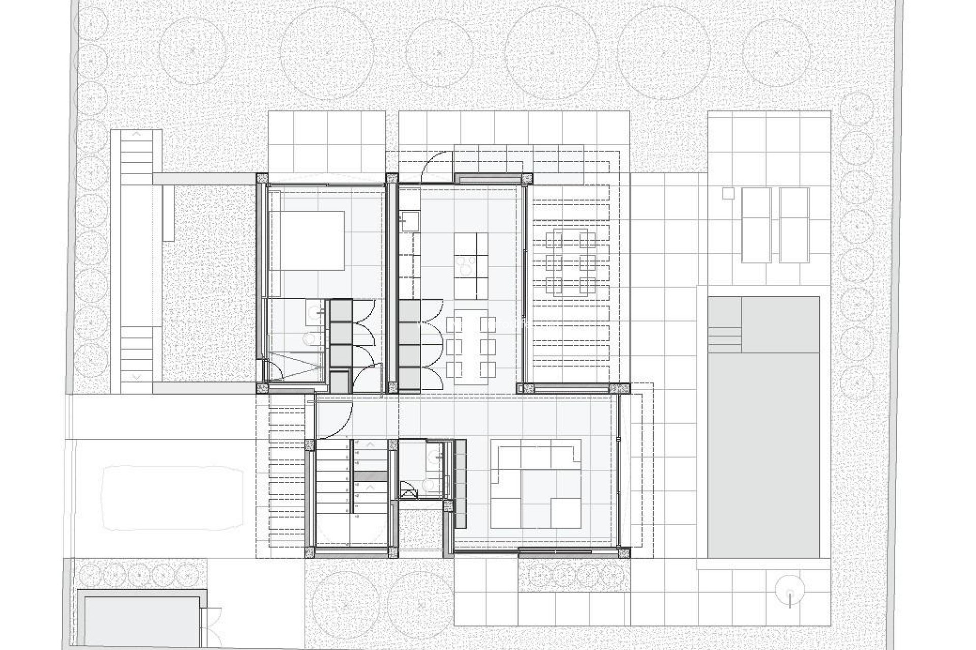
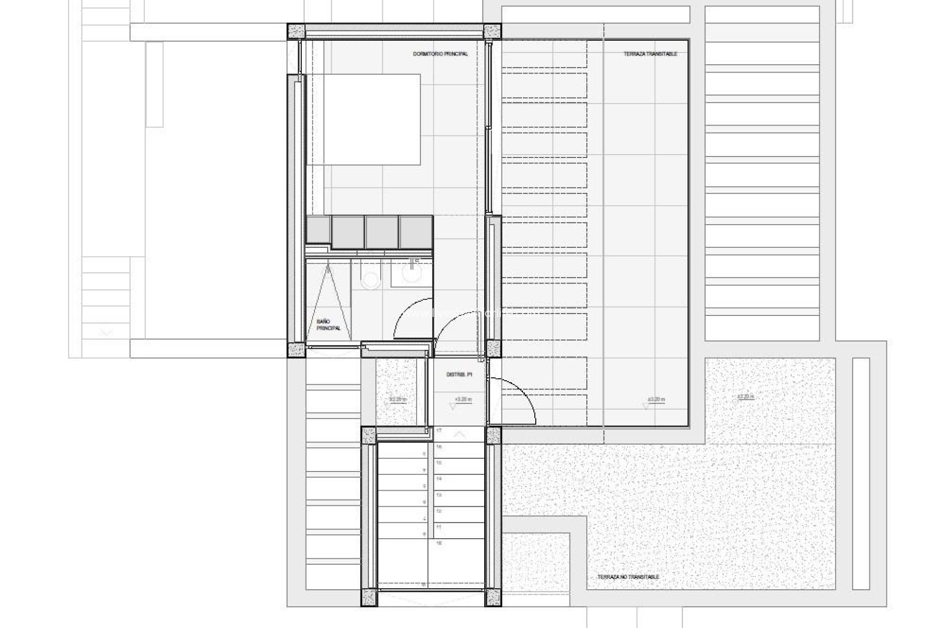
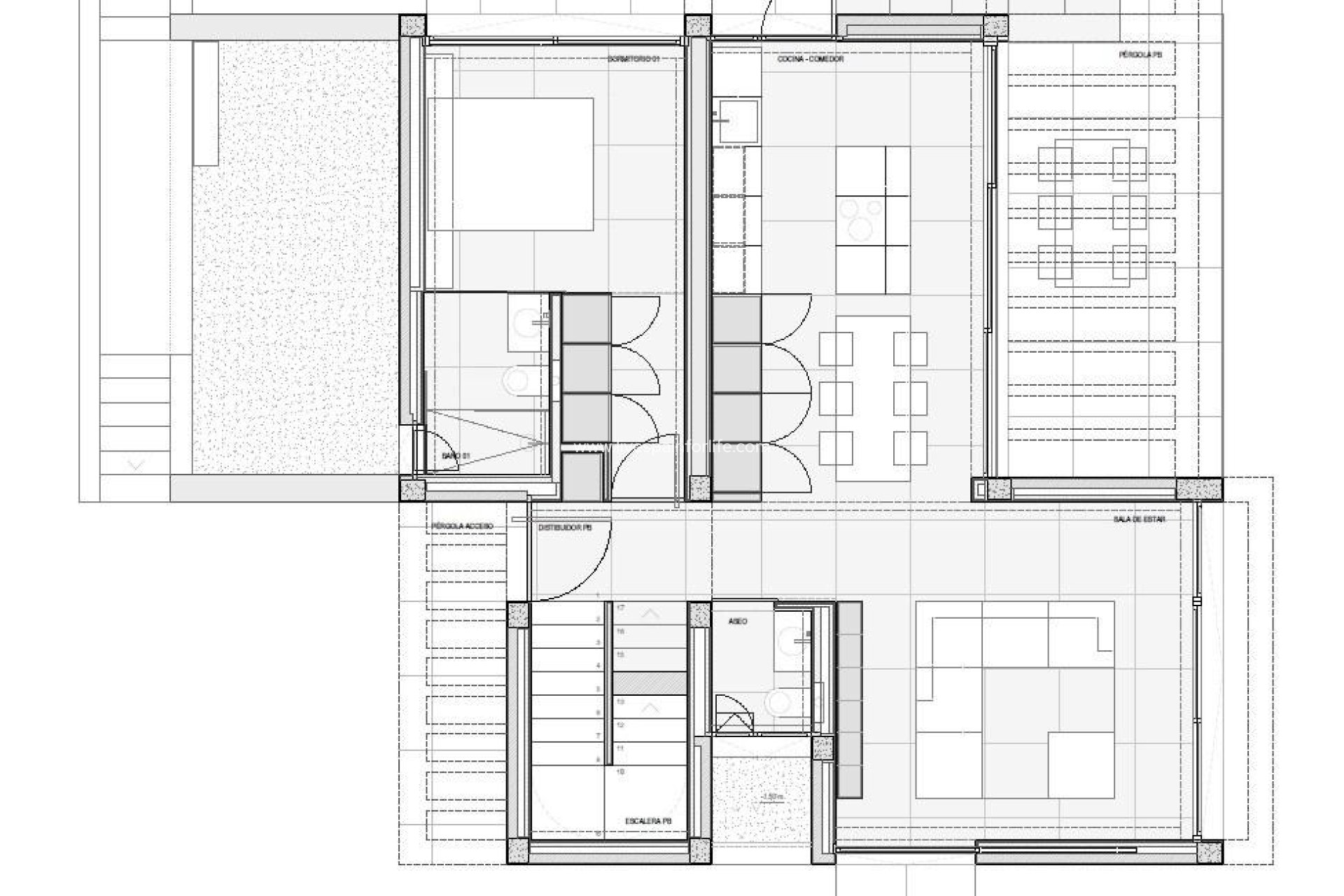
Durchdachte Raumaufteilung auf drei Ebenen
Das Hauptgeschoss empfängt Sie mit einer Eingangshalle mit Einbauschrank und Gästetoilette. Auf dieser Ebene befindet sich ein Schlafzimmer mit eigenem Bad und bodentiefen, hebbaren Fenstertüren, die auf eine private Seitenterrasse führen. Der helle, offene Wohn- und Essbereich verbindet sich direkt mit einer von einer Pergola überdachten Terrasse und dem privaten Salzwasserpool und schafft so ein harmonisches Innen-Außen-Leben.
Das Obergeschoss ist ausschließlich der Master-Suite gewidmet. Diese private Ebene bietet ein Schlafzimmer mit eigenem Bad, Zugang zu einer spektakulären 40 m² großen Terrasse und atemberaubendem Panoramablick auf das Meer und die Berge, was maximale Privatsphäre und Komfort garantiert.
Das Untergeschoss verfügt über zwei weitere Schlafzimmer mit großen Fenstern, die auf einen wunderschön gestalteten, abgesenkten Innenhof blicken und den Raum mit natürlichem Licht durchfluten. Ein gemeinsames Bad, ein komplett ausgestatteter Hauswirtschaftsraum mit Haier-Geräten sowie zwei großzügige Technik- und Abstellräume vervollständigen dieses Stockwerk.
Premium-Ausstattung und Energieeffizienz
Die Villa verfügt über hochwertige Ausstattungen und fortschrittliche Systeme wie: Zentrale Inselküche mit integrierten BOSCH-Geräten, Natursteinarbeitsplatten innen und außen, Panoramafenster mit sonnen- und schallgeschütztem Sicherheitsglas, Mitsubishi Aerothermie-Klimaanlage, Vorbereitung für Fußbodenheizung, Energieeffizienzklasse A, Vorbereitung für Smart-Home-System, privater Parkplatz für zwei Fahrzeuge.
Der mediterran gestaltete Garten mit automatischer Bewässerung und einem eleganten Innenhof auf der unteren Ebene sorgt für Privatsphäre und Entspannung. Die Dachfläche ist für die Installation von Solarpaneelen vorbereitet. Hervorragende Lage und Entfernungen:
Zentrum Polop 2 km, La Nucia 4 km, Strände Benidorm 12 km, Altea 10 km, Villaitana Golf 14 km, Flughafen Alicante 65 km
Entdecken Sie Ihr privates Refugium in Polop
Diese moderne Villa mit Meerblick bietet Design, Privatsphäre und Komfort in einer der attraktivsten Naturlandschaften der Costa Blanca. Kontaktieren Sie uns noch heute, um eine private Besichtigung zu vereinbaren und sich Ihr neues Zuhause in La Alberca Polop zu sichern.
Bei Live Spain for Life sind wir stolz darauf, dass wir nach nur wenigen Gesprächen oder E-Mails mit Ihnen dank unserer Erfahrung normalerweise ziemlich genau feststellen können, wonach Sie suchen, und Ihnen genau diese Immobilien zeigen. Wir sind stolz darauf, ein Familienunternehmen zu sein, das tatsächlich hier in der Gegend lebt und sich seit über 20 Jahren auf Landhäuser, Wiederverkäufe und Neubauten spezialisiert hat.
Unser Portfolio ist umfangreich und wir versuchen, Ihnen nur Immobilien anzubieten, die wir direkt von den Eigentümern erhalten haben. Wir glauben, dass wir uns von vielen anderen Maklern unterscheiden, da wir alles so aktuell wie möglich halten und nur Immobilien bewerben, von denen wir wissen, dass sie verfügbar sind. Die Informationen dienen nur als Leitfaden und stellen KEINE vollständigen Fakten und Details zu den von uns angebotenen Immobilien dar. Es liegt im Ermessen der Käufer und ihres Rechtsteams, die rechtliche Situation zu prüfen und die Details jeder zum Verkauf angebotenen Immobilie vor dem Abschluss zu bestätigen.
Wir sagen Ihnen, was Sie wirklich wissen müssen, wenn Sie eine Immobilie an der Costa Blanca Süd, Spanien, kaufen
Schlafzimmer: 2
Badezimmer: 2
Wohnfläche: 80m2
Pool: Ja