Live Spain for Life biedt u deze uitzonderlijke nieuwbouwvilla aan, gelegen in La Alberca, een rustige woonwijk in de bergen van Polop. Omgeven door bos en natuur biedt het pand panoramisch uitzicht op de Middellandse Zee, de bergen en het historische stadje Polop. Ontworpen met verticale architectonische elegantie, combineert de villa privacy, functionaliteit en een naadloze binnen-buiten leefstijl.
Polop is een charmant dorp aan de Costa Blanca, bekend om zijn traditionele sfeer en natuurlijke schoonheid. De villa ligt dicht bij alle voorzieningen in La Nucia, waaronder winkels, restaurants, sportcentra en scholen. De stranden en levendige kustplaatsen zoals Benidorm en Altea liggen op slechts 15 minuten afstand.
Doordachte indeling over drie verdiepingen
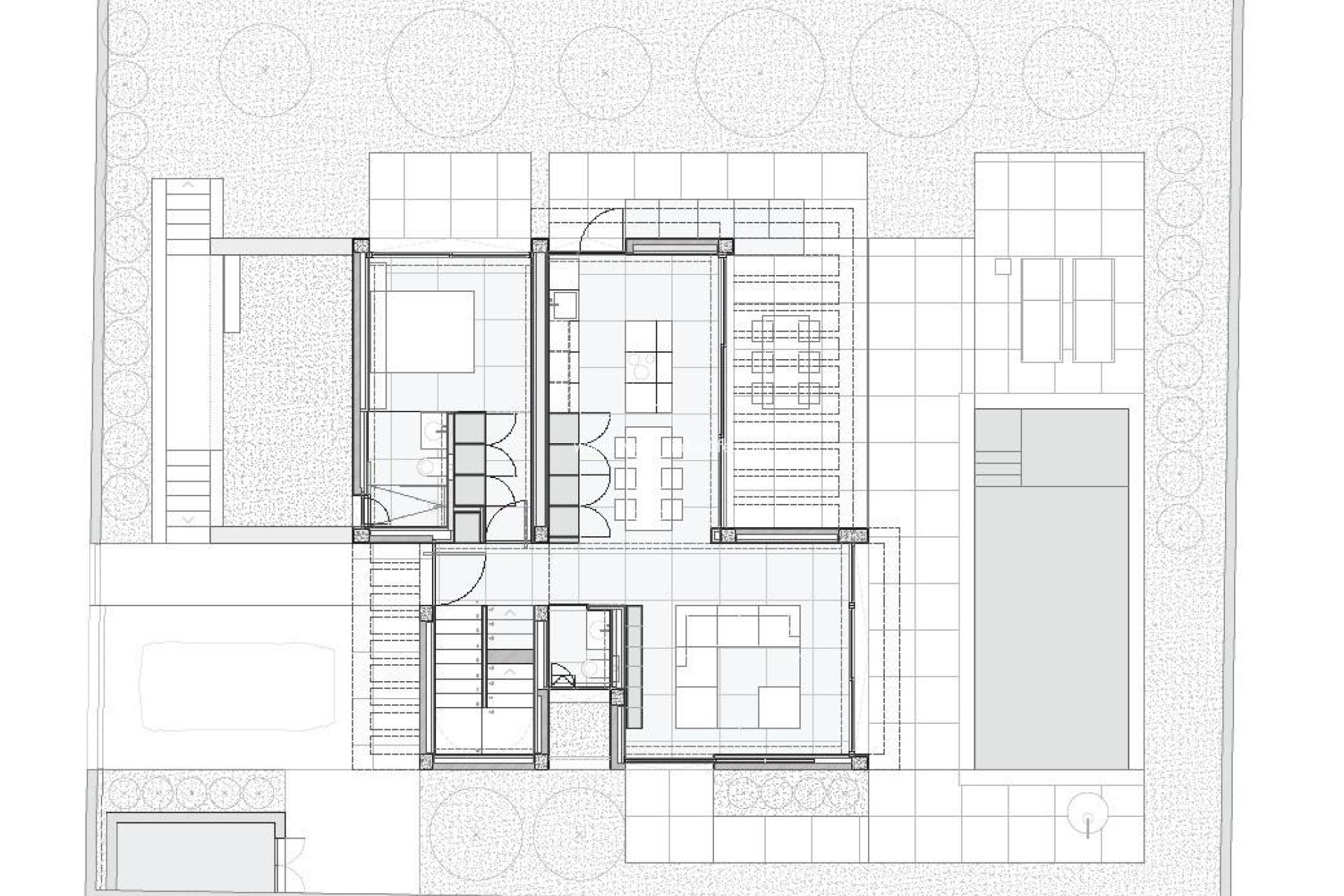
De begane grond verwelkomt u met een entreehal voorzien van een ingebouwde kast en gastentoilet. Op deze verdieping bevindt zich een slaapkamer met badkamer en suite, met kamerhoge schuiframen die uitkomen op een privéterras aan de zijkant. De lichte open woon- en eetkamer sluit direct aan op een overdekt terras met pergola en het privé zoutwaterzwembad, wat zorgt voor een harmonieuze binnen-buiten leefstijl.
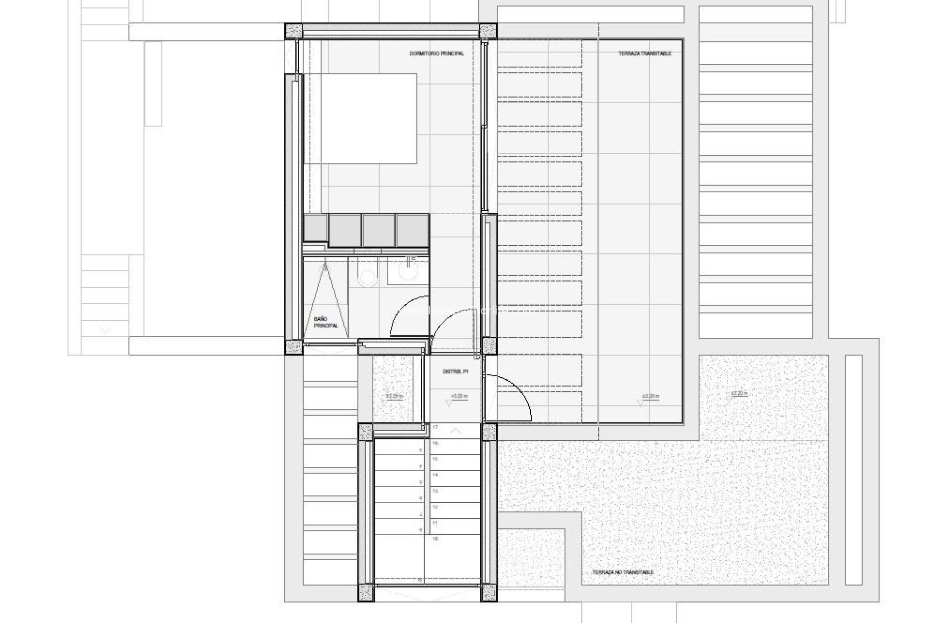
De bovenste verdieping is exclusief gewijd aan de master suite. Dit privé niveau biedt een slaapkamer met badkamer en suite, toegang tot een spectaculair terras van 40 m2 en adembenemend panoramisch uitzicht op zee en bergen, wat maximale privacy en comfort garandeert.
Het souterrain beschikt over twee extra slaapkamers met grote ramen die uitkijken op een fraai aangelegde patio die het geheel vult met natuurlijk licht. Een gedeelde badkamer, volledig uitgeruste wasruimte met Haier-apparatuur en twee ruime technische en opslagruimtes maken deze verdieping compleet.
Hoogwaardige afwerkingen en energie-efficiëntie
De villa beschikt over hoogwaardige afwerkingen en geavanceerde systemen, zoals: Centrale eilandkeuken met geïntegreerde BOSCH-apparatuur, natuurstenen werkbladen binnen en buiten, panoramische ramen met zonwerend versterkt glas, Mitsubishi aerothermisch airconditioningsysteem, vloerverwarming voorbereid, energie-efficiëntieklasse A, voorbereiding voor een smart home systeem, privéparkeerplaats voor twee voertuigen.
De aangelegde mediterrane tuin met automatische irrigatie en een elegante lager gelegen patio vergroten de privacy en ontspanning. Het dakterras is voorbereid voor de installatie van zonnepanelen.
Uitstekende locatie en afstanden
Centrum Polop 2 km
La Nucia 4 km
Stranden Benidorm 12 km
Altea 10 km
Villaitana Golf 14 km
Luchthaven Alicante 65 km
Ontdek uw privé toevluchtsoord in Polop
Deze moderne villa met zeezicht biedt design, privacy en comfort in een van de meest aantrekkelijke natuurlijke omgevingen van de Costa Blanca. Neem vandaag nog contact met ons op om een privébezichtiging te regelen en verzeker uzelf van uw nieuwe woning in La Alberca, Polop.
Bij Live Spain for Life zijn we er trots op dat we na slechts een paar gesprekken of e-mails met u, dankzij onze ervaring, meestal heel goed kunnen inschatten wat u zoekt en u die woningen kunnen laten zien. We zijn trots een familiebedrijf te zijn dat hier daadwerkelijk in de regio woont en al meer dan 20 jaar is gespecialiseerd in landelijke woningen, wederverkoop en nieuwbouw.
Ons portfolio is uitgebreid en we proberen u alleen woningen aan te bieden die we direct van de eigenaren zelf hebben. Wij geloven dat we verschillen van veel andere makelaars omdat we alles zo up-to-date mogelijk houden en alleen woningen adverteren waarvan we weten dat ze actueel en beschikbaar zijn. De informatie is slechts een richtlijn en vormt GEEN volledige feiten en details van de woningen die wij te koop aanbieden. Het is aan de kopers en hun juridische adviseurs om de juridische situatie te bepalen en de gegevens van een aangeboden woning vóór afronding te bevestigen.
Wij vertellen u wat u écht moet weten bij het kopen van een woning aan de Costa Blanca Zuid, Spanje.
Slaapkamers: 2
Badkamers: 2
Bebouwd: 80m²
Zwembad: Ja