Live Spain for Life oferuje Państwu tę wyjątkową willę w nowej zabudowie, zlokalizowaną w La Alberca, spokojnej, rezydencyjnej okolicy w górach Polop. Otoczona lasem i naturą, nieruchomość oferuje panoramiczne widoki na Morze Śródziemne, góry oraz historyczne miasto Polop. Willa, zaprojektowana z pionową elegancją architektoniczną, łączy prywatność, funkcjonalność oraz płynne przejście między wnętrzem a otoczeniem.
Polop to urocza wioska na Costa Blanca, znana z tradycyjnej atmosfery i naturalnego piękna. Willa położona jest blisko wszystkich usług w La Nucia, w tym sklepów, restauracji, centrów sportowych i szkół. Plaże oraz tętniące życiem nadmorskie miasta, takie jak Benidorm i Altea, są oddalone zaledwie o 15 minut.
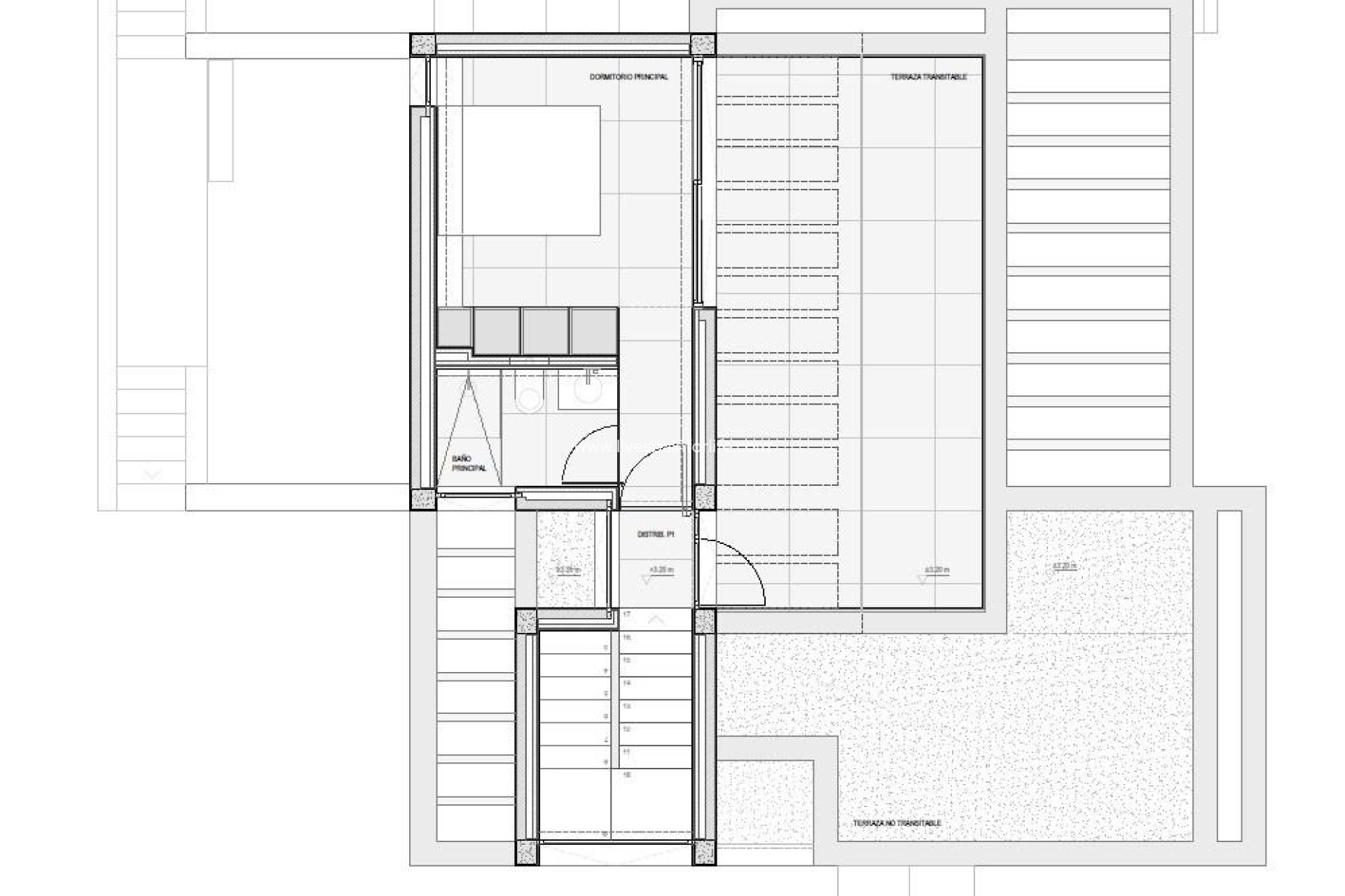
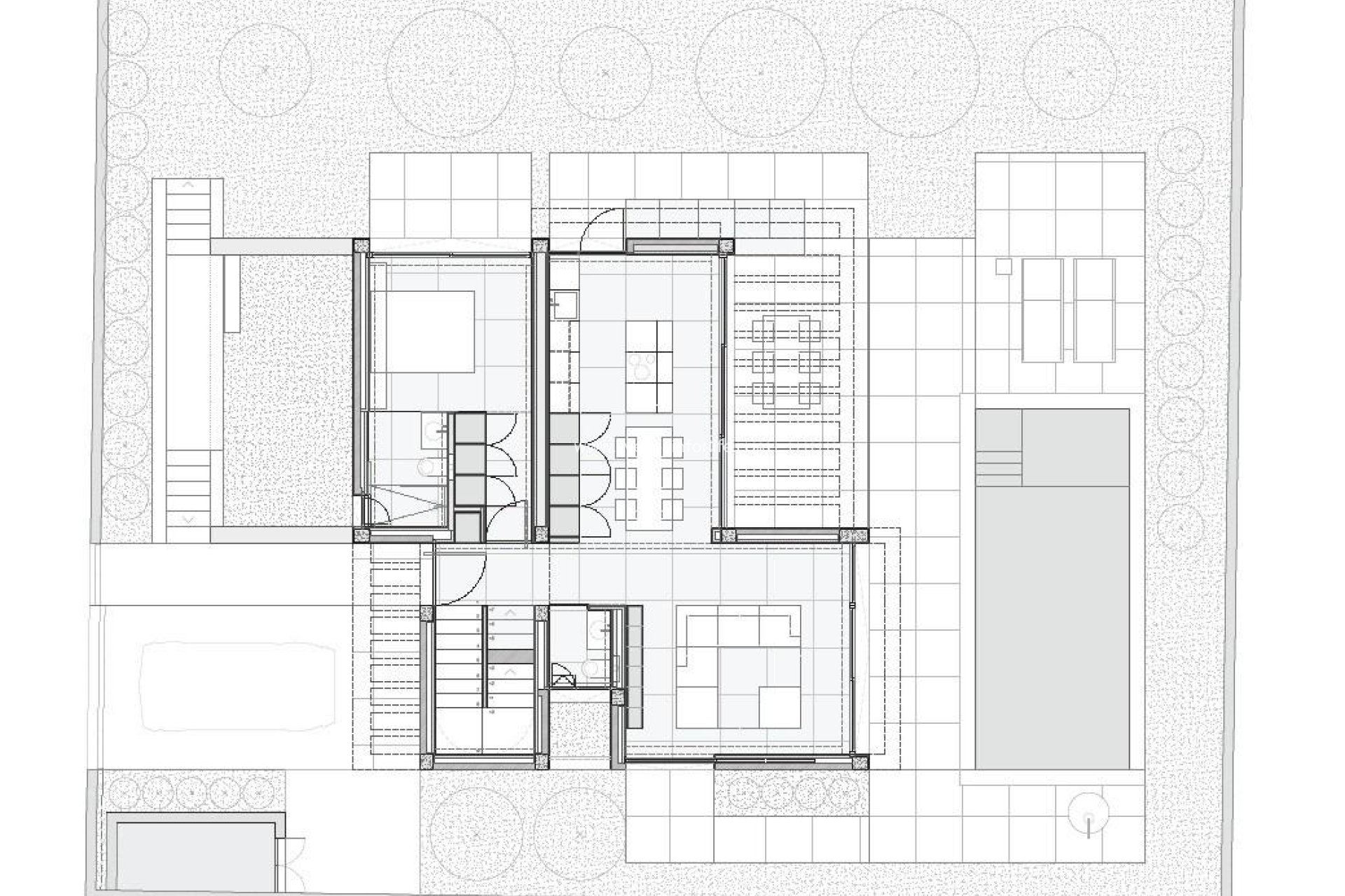
Przemyślany rozkład na trzech poziomach
Na głównym piętrze znajduje się hol wejściowy z wbudowaną szafą oraz toaleta dla gości. Na tym poziomie znajduje się także sypialnia z łazienką typu en suite i podnoszonymi drzwiami okiennymi od podłogi do sufitu, prowadzącymi na prywatny taras boczny. Jasny salon z jadalnią w układzie otwartym łączy się bezpośrednio z tarasem z pergolą oraz prywatnym basenem ze słoną wodą, tworząc harmonijny styl życia wewnątrz i na zewnątrz.
Górne piętro przeznaczone jest wyłącznie dla apartamentu głównego. Ten prywatny poziom oferuje sypialnię z łazienką en suite oraz wyjściem na spektakularny taras o powierzchni 40 m2 i zapierającymi dech panoramicznymi widokami na morze i góry, zapewniając maksymalną prywatność i komfort.
Poziom piwnicy obejmuje dwie dodatkowe sypialnie z dużymi oknami wychodzącymi na pięknie zaprojektowany, zagłębiony dziedziniec, który wypełnia przestrzeń naturalnym światłem. Wspólna łazienka, w pełni wyposażona pralnia z urządzeniami marki Haier oraz dwa przestronne pomieszczenia techniczne i gospodarcze uzupełniają to piętro.
Wykończenie premium i efektywność energetyczna
Willa obejmuje wysokiej jakości wykończenia oraz zaawansowane systemy, takie jak: kuchnia z centralną wyspą i zintegrowanymi urządzeniami BOSCH, blaty z naturalnego kamienia wewnątrz i na zewnątrz, panoramiczne okna z zabezpieczonymi przed słońcem wzmocnionymi szybami, system klimatyzacji aerotermalnej Mitsubishi, przygotowanie pod ogrzewanie podłogowe, klasa efektywności energetycznej A, przygotowanie pod system inteligentnego domu, prywatny parking dla dwóch pojazdów.
Zagospodarowany śródziemnomorski ogród z automatycznym nawadnianiem oraz elegancki niższy dziedziniec podnoszą prywatność i relaks. Poziom dachu jest przygotowany pod instalację paneli słonecznych. Doskonała lokalizacja i odległości
Centrum Polop 2 km, La Nucia 4 km, Plaże Benidorm 12 km, Altea 10 km, Villaitana Golf 14 km, Lotnisko Alicante 65 km
Odkryj swoją prywatną oazę w Polop
Ta nowoczesna willa z widokiem na morze oferuje design, prywatność i komfort w jednym z najatrakcyjniejszych naturalnych zakątków Costa Blanca. Skontaktuj się z nami, aby umówić się na prywatną prezentację i zapewnić sobie nowy dom w La Alberca Polop.
W Live Spain for Life jesteśmy dumni z tego, że już po kilku rozmowach lub wymianie maili, dzięki naszemu doświadczeniu, jesteśmy w stanie bardzo dokładnie określić, czego Państwo szukają, i pokazać właśnie takie nieruchomości. Jesteśmy dumni, że prowadzimy rodzinną firmę, mieszkając tutaj na miejscu i specjalizując się w domach na wsi, sprzedaży wtórnej i nowych inwestycjach od ponad 20 lat.
Nasze portfolio jest obszerne i staramy się oferować wyłącznie nieruchomości, które mamy bezpośrednio od właścicieli. Uważamy, że różnimy się od wielu innych agencji, ponieważ dbamy o to, by wszystko było jak najbardziej aktualne i reklamujemy jedynie nieruchomości, które faktycznie są dostępne. Informacje mają charakter poglądowy i NIE stanowią pełnych danych dotyczących oferowanych nieruchomości. To w gestii kupujących i ich prawników leży ustalenie stanu prawnego i potwierdzenie szczegółów każdej nieruchomości przed transakcją.
Powiadamiamy Cię o wszystkim, co naprawdę musisz wiedzieć, kupując nieruchomość na Costa Blanca Południe, Hiszpania
Sypialnie: 2
Łazienki: 2
Powierzchnia zabudowy: 80m2
Basen: Tak